名古屋市立豊田小学校区の中古住宅・中古一戸建てをさがす

条件を変更↓
以下の条件で絞り込む
物件種別
間取り
物件価格
築年数
土地面積
延床面積
駅までの分数
該当件数1
該当件数1
現在の検索条件
市・区を変更する×
沿線・駅を変更する× JR中央本線(名古屋~塩尻)
JR高山本線
JR東海道本線(浜松~岐阜)
JR関西本線(名古屋~亀山)
名鉄名古屋本線
名鉄常滑線
名鉄河和線
名鉄築港線
名鉄瀬戸線
名鉄津島線
名鉄尾西線
名鉄各務原線
名鉄小牧線
名鉄竹鼻線
内部線
八王子線
近鉄名古屋線
あおなみ線
名古屋市営地下鉄東山線
名古屋市営地下鉄名城線
名古屋市営地下鉄名港線
名古屋市営地下鉄桜通線
三岐鉄道三岐線
三岐鉄道北勢線
養老鉄道養老線
閉じる ×
物件種別
中古一戸建て
学校区
豊田小学校
検索結果:1件中1〜1件表示
  • 前ページ
  • 1/1
  • 次ページ
並べ替え:
並べ替え:
  • 前ページ
  • 1/1
  • 次ページ
検索結果:1件中1〜1件表示
HPに掲載していない
来店限定物件あり!

売主様の要望でサイトに掲載できない物件が多数ございます。
来店して、希望条件を教えていただければ、ご希望にあった物件を紹介させていただきます。

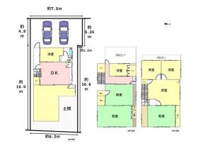
名古屋市立豊田小学校区の中古住宅・中古一戸建てが一覧でご覧いただけます。さらに詳細な条件で絞り込むこともできます。物件をクリックすると、物件概要などを閲覧できます。