名古屋市南区は名古屋市の中央南側に位置します。 国道1号を境に、東側は笠寺台地とよばれる丘陵地。西側は山崎川および天白川に沿った平坦な地形です。海抜ゼロメートル地帯も少なくないです。昔は湿地帯が多く大人の身長をこえる芦などが群生し、呼びあいながら方向を確認していた名残の「呼続」なる地名や「大磯」など、現在も古来の地理にちなんだ地名が残る、歴史ある土地です。 名古屋市南区の都市計画はJR東海道本線をから西側では商業、工業の利便を推進する地域として分類され、東側では住宅の良好な環境を守る地域として分類される傾向のあるエリアです。よって流通している中古一戸建ても様々で、築年数10年以内のハウスメーカーで建築した住宅もあれば、築40年超の長屋に近い小規模の住宅も流通しています。数は多くはありません。予算と期間をじっくり練り上げて、お得に自分アレンジの住まいを手に入れたい方には名古屋市南区の中古一戸建てはお勧めです。
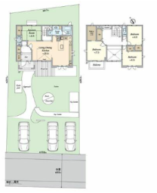
| 物件価格3,780万円 | 最寄駅道徳駅 | アクセス名鉄常滑線道徳駅徒歩5分 |
| 築年月2001年10月 | 所在地名古屋市南区豊田1丁目 | 土地面積161.68m² |
| 間取り5DK+S | 階数2階 | 建物面積103.74m² |
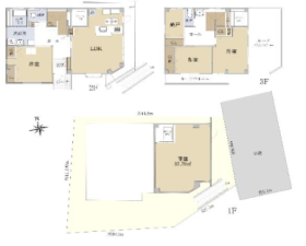
| 物件価格3,980万円 | 最寄駅東名古屋港駅 | アクセス名鉄築港線東名古屋港駅徒歩17分 |
| 築年月2000年1月 | 所在地名古屋市南区七条町1丁目 | 土地面積177.41m² |
| 間取り5LDK | 階数3階 | 建物面積174.97m² |
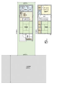
| 物件価格2,880万円 | 最寄駅大同町駅 | アクセス名鉄常滑線大同町駅徒歩10分 |
| 築年月2006年6月 | 所在地名古屋市南区滝春町 | 土地面積143.13m² |
| 間取り3LDK+S | 階数3階 | 建物面積122.85m² |
| 物件価格1,570万円 | 最寄駅大高駅 | アクセスJR東海道本線大高駅徒歩25分 |
| 築年月1991年3月 | 所在地名古屋市南区要町5丁目 | 土地面積83.96m² |
| 間取り5DK | 階数2階 | 建物面積100.68m² |
| 物件価格3,470万円 | 最寄駅堀田駅 | アクセス名古屋市営地下鉄名城線堀田駅徒歩10分 |
| 築年月2009年12月 | 所在地名古屋市南区豊4丁目 | 土地面積109.62m² |
| 間取り4LDK | 階数2階 | 建物面積115.91m² |
| 物件価格3,480万円 | 最寄駅笠寺駅 | アクセスJR東海道本線笠寺駅徒歩12分 |
| 築年月1990年6月 | 所在地名古屋市南区鳥山町1丁目 | 土地面積190.01m² |
| 間取り5LDK+S | 階数2階 | 建物面積172.64m² |
| 物件価格1,790万円 | 最寄駅柴田駅 | アクセス名鉄常滑線柴田駅徒歩17分 |
| 築年月1991年4月 | 所在地名古屋市南区天白町2丁目 | 土地面積89.55m² |
| 間取り6LDK | 階数3階 | 建物面積142.38m² |
| 物件価格1,180万円 | 最寄駅柴田駅 | アクセス名鉄常滑線柴田駅徒歩8分 |
| 築年月1992年8月 | 所在地名古屋市南区三吉町3丁目 | 土地面積73.09m² |
| 間取り2K+S | 階数2階 | 建物面積62.93m² |
| 物件価格680万円 | 最寄駅本星崎駅 | アクセス名鉄名古屋本線本星崎駅徒歩3分 |
| 築年月1947年1月 | 所在地名古屋市南区本星崎町字町 | 土地面積95.23m² |
| 間取り3DK | 階数2階 | 建物面積95.83m² |
| 物件価格5,480万円 | 最寄駅鶴里駅 | アクセス名古屋市営地下鉄桜通線鶴里駅徒歩5分 |
| 築年月2005年1月 | 所在地名古屋市南区楠町 | 土地面積162m² |
| 間取り5LDK | 階数3階 | 建物面積167.35m² |
| 物件価格7,480万円 | 最寄駅本星崎駅 | アクセス名鉄名古屋本線本星崎駅徒歩14分 |
| 築年月2015年9月 | 所在地名古屋市南区砂口町 | 土地面積321.77m² |
| 間取り4LDK | 階数2階 | 建物面積129.64m² |
図面作成中
| 物件価格530万円 | 最寄駅本星崎駅 | アクセス名鉄名古屋本線本星崎駅徒歩21分 |
| 築年月1977年6月 | 所在地名古屋市南区鳴尾1丁目 | 土地面積55.54m² |
| 間取り4DK | 階数2階 | 建物面積71.82m² |
オープンハウス開催! | 物件価格2,980万円 | 最寄駅大高駅 | アクセスJR東海道本線大高駅徒歩15分 |
| 築年月2017年11月 | 所在地名古屋市南区上浜町 | 土地面積78m² |
| 間取り3LDK | 階数3階 | 建物面積94.8m² |
| 物件価格3,300万円 | 最寄駅桜駅 | アクセス名鉄名古屋本線桜駅徒歩14分 |
| 築年月2000年5月 | 所在地名古屋市南区北内町4丁目 | 土地面積137.61m² |
| 間取り3LDK | 階数2階 | 建物面積113.5m² |
| 物件価格2,780万円 | 最寄駅桜本町駅 | アクセス名古屋市営地下鉄桜通線桜本町駅徒歩4分 |
| 築年月2015年4月 | 所在地名古屋市南区呼続3丁目 | 土地面積71.06m² |
| 間取り1LDK+S | 階数2階 | 建物面積55.13m² |
オープンハウス開催! | 物件価格2,780万円 | 最寄駅桜本町駅 | アクセス名古屋市営地下鉄桜通線桜本町駅徒歩4分 |
| 築年月2015年4月 | 所在地名古屋市南区呼続3丁目 | 土地面積71.06m² |
| 間取り1LDK+S | 階数2階 | 建物面積55.13m² |
| 物件価格4,280万円 | 最寄駅桜本町駅 | アクセス名古屋市営地下鉄桜通線桜本町駅徒歩1分 |
| 築年月2023年9月 | 所在地名古屋市南区寺崎町 | 土地面積69.76m² |
| 間取り4LDK | 階数3階 | 建物面積116.57m² |
図面作成中
| 物件価格1,080万円 | 最寄駅柴田駅 | アクセス名鉄常滑線柴田駅徒歩21分 |
| 築年月1994年6月 | 所在地名古屋市南区天白町3丁目 | 土地面積80.96m² |
| 間取り3LDK | 階数2階 | 建物面積83.12m² |
| 物件価格1,980万円 | 最寄駅道徳駅 | アクセス名鉄常滑線道徳駅徒歩10分 |
| 築年月1996年2月 | 所在地名古屋市南区豊田3丁目 | 土地面積75.28m² |
| 間取り4DK | 階数2階 | 建物面積86.12m² |
オープンハウス開催! | 物件価格3,335万円 | 最寄駅大江駅 | アクセス名鉄常滑線大江駅徒歩13分 |
| 築年月1997年1月 | 所在地名古屋市南区観音町6丁目 | 土地面積165.28m² |
| 間取り3LDK+S | 階数2階 | 建物面積121.28m² |
売主様のご要望で、当サイトにご掲載できない物件が多数ございます。
ご来店いただき、希望条件を教えていただけますと、ご希望にあった物件を紹介させていただきます。
名古屋市中区錦一丁目3番18号 エターナル北山ビル5F
TEL.052-228-0815
TEL.052-228-0815