4,999万円
中古一戸建て

●名古屋市南区豊田4丁目 中古一戸建て

[最寄り駅] 名鉄常滑線「道徳」駅/名鉄常滑線「豊田本町」駅/名鉄常滑線「大江」駅
[所在地] 名古屋市南区豊田4丁目 (名古屋市南区の不動産の購入と売却→)
オープンハウス★現地案内会★ハウスドゥ 南区道徳 時間/10:00〜18:00 来場予約

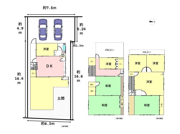
☆内観写真公開☆ 【鉄筋コンクリート造3階建ての広々8DK】●駅徒歩約3分で通勤・通学も安心●オートバス・トイレ2か所・エアコン4基以上●駐車スペース普通車2台分可能●豊田小学校/大江中学校●
お問い合わせ番号:4481413

築年月
1976年8月
建物面積
199.87m²
土地面積
144.3m²
DB間取り図
築年月
1976年8月
建物面積
199.87m²
土地面積
144.3m²
DB間取り図

周辺地図

→google map
お問い合わせはこちら

[●名古屋市南区豊田4丁目 中古一戸建て]のおすすめポイント

この物件は名鉄常滑線「道徳」駅から徒歩約3分、1976年(昭和51年)築の一戸建てです。周辺は近隣商業地域に該当します。近隣の住民が日用品の買い物をする店舗等の業務の利便の増進を図る地域です。住宅や店舗の他に小規模の工場も建てられます。アピタ名古屋南店まで徒歩約5分(約360m)、Vドラッグ名古屋豊田店まで徒歩約10分(約770m)、のりクリニックまで徒歩約6分(約420m)など、各種生活施設が徒歩圏内に揃っています。豊田小学校まで徒歩約5分(約360m)、大江中学校まで徒歩約5分(約340m)と子育て世帯にも嬉しい環境です。駅までの道のりはほぼ平坦。区画はほぼ整理されています。敷地面積は約144.30㎡(約43.65坪)。駐車スペースは普通車2台分あり。建物は鉄筋コンクリート造3階建てで、延床面積は約199.87㎡の8DK。オートバスや三口コンロ付きシステムキッチン、洗面化粧台、トイレ2か所など設備も充実しています。名古屋道徳本町郵便局や道徳公園も徒歩圏内にあり、買い物や外出にも便利。暮らしやすさと利便性を兼ね備えた住環境です。

物件概要

所在地
名古屋市南区豊田4丁目
交通
名鉄常滑線道徳駅徒歩3分
名鉄常滑線豊田本町駅徒歩16分
名鉄常滑線大江駅徒歩16分
学校区
名古屋市立豊田小学校 豊田小学校の不動産の購入→
名古屋市立大江中学校 大江中学校の不動産の購入→
間取り
8DK
価格
4,999万円
構造/階数
RC/3階
築年月
1976年8月
土地面積
144.3m²
建物面積
199.87m²
接道
東側41.5m公道に接道
用途地域
近隣商業
都市計画
市街化区域
建ぺい率
80%
容積率
300%
地目
宅地
総戸数
-
駐車場
有 普通車:2台 
現況
引き渡し可能時期
相談
設備
 
取引態様
専任媒介
取引条件の有効期限
2026年3月24日
  • ※ 図面と現況が異なる場合は、現況を優先とします。
  • ※ 掲載物件は成約済み・売却中止となる場合があります。
  • ※ 成約の際は仲介手数料とこれにかかる消費税が必要です。(当社が売主の物件除く)
ローンシミュレーションを見る

ローンシミュレーション

この物件でローンシミュレーションをするこの物件を購入した場合の、月々の支払い価格の一例です。
返済期間
金利
ボーナス返済の割合
借入金額
万円
毎月の返済額
ボーナス月の返済額
  • ●実際の返済額とは諸条件によって異なります。目安としてご利用ください。
  • ●金利は返済期間を通して変わらないものとし、元利均等方式(元金と利息を合計した、毎月の返済額が同じになる)で計算しました。
  • ●ボーナス返済については、借入日とボーナス月の間隔によって、計算の結果が少し異なります。
周辺施設を見る

よくある質問

  • 「●名古屋市南区豊田4丁目 中古一戸建て」の購入に必要な頭金はどのくらいですか?

    物件価格の1〜2割程度が頭金の相場です。ファミリアホームサービスは、ファイナンシャルプランナー資格を持つスタッフが多数在籍しています。各銀行の審査条件やフラット35の金利情報などにも詳しいので、マイホーム購入に向けて、お金に関するご心配にも、誠心誠意対応いたします。お気軽にお問い合わせください。→お問い合わせはこちら

  • 資料はもらえますか

    はい、お渡しいたします!メールかお電話にて資料をご請求ください。ファミリアホームサービスは名古屋近郊に各拠点があり、地域密着が強みです。間取りや物件概要はもちろん、生活施設や教育施設など、周辺環境などの詳細もお伝えできる資料をお渡しできます。→お問い合わせはこちら

  • 見学することはできますか。

    メールかお電話にてご予約いただければ、待ち時間なくご案内させていただきます。物件見学はここに住んだら・・・のイメージが大切です。見学の際には、物件の特徴や周辺環境についてわかりやすく詳しくお伝えいたします。2〜3件見学される方が多いですが、もちろんもっと多くのご見学でも対応させていただきますのでお気軽にどうぞ!→来店予約はこちら

  • 「●名古屋市南区豊田4丁目 中古一戸建て」購入の際、不動産取得税の軽減措置は受けられますか?

    不動産取得税の軽減措置を受けるには、様々な諸条件があります。ですので、メールかお電話にて一度ご相談ください。ファミリアホームサービスは、グループ会社に税理士法人もあり、税金に関しても高い専門知識を持った経験豊富なスタッフが在籍しています。お気軽にお問い合わせください。→お問い合わせはこちら

←名古屋市南区中古一戸建ての一覧を見る [●名古屋市南区豊田4丁目 中古一戸建て]のお問い合わせはお気軽にどうぞ。私たちがお待ちしております。
ハウスドゥ  南区道徳のスタッフ

ハウスドゥ 南区道徳

  • 住所:愛知県名古屋市南区豊田4-5-21
  • TEL:0120-802-034
  • FAX:052-613-7545
  • 定休日:水曜日(祝日の場合は営業)、年末年始
  • 営業時間:10:00~18:00
【●名古屋市南区豊田4丁目 中古一戸建て】は名古屋市南区の中古一戸建て、4,999万円。お問い合わせはファミリアホームサービスまで。 【●名古屋市南区豊田4丁目 中古一戸建て】は名古屋市南区の中古一戸建て、4,999万円。お問い合わせはファミリアホームサービスまで。