2,680万円
新築一戸建て NEW

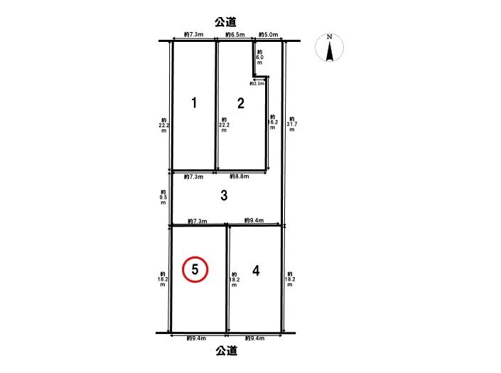
LiveleGardenS岐阜市河渡4丁目 全5区画 5号棟 新築一戸建て

[最寄り駅] JR東海道本線「穂積」駅/JR東海道本線「西岐阜」駅
[所在地] 岐阜市河渡4丁目
2,680万円


お問い合わせ番号:4577434

築年月
2026年5月
建物面積
100.4m²
土地面積
172.3m²
DB間取り図
築年月
2026年5月
建物面積
100.4m²
土地面積
172.3m²
DB間取り図

周辺地図

→google map
お問い合わせはこちら

物件概要

所在地
岐阜市河渡4丁目
交通
JR東海道本線穂積駅徒歩37分
JR東海道本線西岐阜駅徒歩39分
学校区
岐阜市立合渡小学校 合渡小学校の不動産の購入→
岐阜市立岐阜西中学校 岐阜西中学校の不動産の購入→
間取り
4LDK
価格
2,680万円
構造/階数
木造/2階
完成予定年月
2026年5月
開発面積
-
土地面積
172.3m²
建物面積
100.4m²
接道
南側6.1m公道に9.45m接道
用途地域
2種中高
都市計画
市街化区域
建ぺい率
60%
容積率
200%
地目
宅地
総戸数
-
駐車場
-
現況
建築中
引き渡し可能時期
期日指定
設備
  -
建築確認番号
確認サービス第KS126-0420-50218号
開発許可番号
-
取引態様
媒介
取引条件の有効期限
2026年2月14日
  • ※ 図面と現況が異なる場合は、現況を優先とします。
  • ※ 掲載物件は成約済み・売却中止となる場合があります。
  • ※ 成約の際は仲介手数料とこれにかかる消費税が必要です。(当社が売主の物件除く)
ローンシミュレーションを見る

ローンシミュレーション

この物件でローンシミュレーションをするこの物件を購入した場合の、月々の支払い価格の一例です。
返済期間
金利
ボーナス返済の割合
借入金額
万円
毎月の返済額
ボーナス月の返済額
  • ●実際の返済額とは諸条件によって異なります。目安としてご利用ください。
  • ●金利は返済期間を通して変わらないものとし、元利均等方式(元金と利息を合計した、毎月の返済額が同じになる)で計算しました。
  • ●ボーナス返済については、借入日とボーナス月の間隔によって、計算の結果が少し異なります。
周辺施設を見る

よくある質問

  • 「LiveleGardenS岐阜市河渡4丁目 全5区画 5号棟 新築一戸建て」の購入に必要な頭金はどのくらいですか?

    物件価格の1〜2割程度が頭金の相場です。ファミリアホームサービスは、ファイナンシャルプランナー資格を持つスタッフが多数在籍しています。各銀行の審査条件やフラット35の金利情報などにも詳しいので、マイホーム購入に向けて、お金に関するご心配にも、誠心誠意対応いたします。お気軽にお問い合わせください。→お問い合わせはこちら

  • 資料はもらえますか

    はい、お渡しいたします!メールかお電話にて資料をご請求ください。ファミリアホームサービスは名古屋近郊に各拠点があり、地域密着が強みです。間取りや物件概要はもちろん、生活施設や教育施設など、周辺環境などの詳細もお伝えできる資料をお渡しできます。→お問い合わせはこちら

  • 見学することはできますか。

    メールかお電話にてご予約いただければ、待ち時間なくご案内させていただきます。物件見学はここに住んだら・・・のイメージが大切です。見学の際には、物件の特徴や周辺環境についてわかりやすく詳しくお伝えいたします。2〜3件見学される方が多いですが、もちろんもっと多くのご見学でも対応させていただきますのでお気軽にどうぞ!→来店予約はこちら

  • 「LiveleGardenS岐阜市河渡4丁目 全5区画 5号棟 新築一戸建て」購入の際、不動産取得税の軽減措置は受けられますか?

    不動産取得税の軽減措置を受けるには、様々な諸条件があります。ですので、メールかお電話にて一度ご相談ください。ファミリアホームサービスは、グループ会社に税理士法人もあり、税金に関しても高い専門知識を持った経験豊富なスタッフが在籍しています。お気軽にお問い合わせください。→お問い合わせはこちら

←岐阜市新築一戸建ての一覧を見る [LiveleGardenS岐阜市河渡4丁目 全5区画 5号棟 新築一戸建て]のお問い合わせはお気軽にどうぞ。私たちがお待ちしております。
ハウスドゥ  岐阜長良のスタッフ

ハウスドゥ 岐阜長良

  • 住所:岐阜市上土居1丁目5番2号 プラズマビル1階A号室
  • TEL:0120-77-8510
  • FAX:058-215-8520
  • 定休日:第3火曜日・水曜日(祝日の場合は営業)、年末年始
  • 営業時間:10:00~18:00
【LiveleGardenS岐阜市河渡4丁目 全5区画 5号棟 新築一戸建て】は岐阜市の新築一戸建て、2,680万円。お問い合わせはファミリアホームサービスまで。 【LiveleGardenS岐阜市河渡4丁目 全5区画 5号棟 新築一戸建て】は岐阜市の新築一戸建て、2,680万円。お問い合わせはファミリアホームサービスまで。