2,892万円
新築一戸建て

グラファーレ北名古屋市六ツ師8期 全4棟 2号棟

[最寄り駅] 名鉄犬山線「徳重・名古屋芸大」駅/名鉄犬山線「西春」駅
[所在地] 北名古屋市六ツ師宮西
2,892万円
オープンハウス★現地案内会★ハウスドゥ 北区城北 時間/10:00〜18:00 来場予約

【シューズインクローク付き3LDK】●全室2面採光で明るい住まい●ウォークインクローゼットとシューズインクロークを設置●駐車スペース普通車2台分あり●師勝東小学校/熊野中学校●
お問い合わせ番号:4524284

築年月
2026年3月
建物面積
91.08m²
土地面積
132.3m²
DB間取り図
築年月
2026年3月
建物面積
91.08m²
土地面積
132.3m²
DB間取り図

周辺地図

→google map
お問い合わせはこちら

[グラファーレ北名古屋市六ツ師8期 全4棟 2号棟]のおすすめポイント

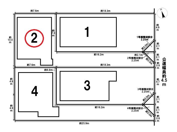
名鉄犬山線「徳重・名古屋芸大」駅から北方向へ徒歩約25分、北名古屋市六ツ師宮西にある「グラファーレ北名古屋市六ツ師8期」全4棟の2号棟、新築一戸建てです。周辺は第1種中高層住居専用地域に該当し、中高層住宅の良好な環境を守るための地域です。病院や大学、500㎡までの一定のお店などが建てられ、500㎡以下のスーパーも建築できます。ナフコトミダ中央店まで徒歩約8分(約600m)、スーパーダイ新まで徒歩約10分(約750m)、ココカラファインZipドラッグ白沢片場店まで徒歩約7分(約540m)、山田クリニックまで徒歩約7分(約510m)、師勝郵便局まで徒歩約8分(約630m)と生活施設が身近に点在しています。敷地面積は約132.30㎡(約40.02坪)で、南東側公道幅員約4.5mに面した立地です。建物は木造2階建て、延床面積約91.08㎡の3LDKで、LDKは15帖以上を確保。全室2面採光で明るく、ウォークインクローゼットやシューズインクロークなど収納も充実し、駐車スペースは普通車2台分を備えた新築戸建です。

物件概要

所在地
北名古屋市六ツ師宮西
交通
名鉄犬山線徳重・名古屋芸大駅徒歩25分
名鉄犬山線西春駅徒歩33分
学校区
名古屋市立師勝東小学校
名古屋市立熊野中学校
間取り
3LDK
価格
2,892万円
構造/階数
木造/2階
完成予定年月
2026年3月
開発面積
-
土地面積
132.3m²
建物面積
91.08m²
接道
南東側4.5m公道に接道
用途地域
1種中高
都市計画
市街化区域
建ぺい率
60%
容積率
200%
地目
総戸数
-
駐車場
有 普通車:2台 
現況
建築中
引き渡し可能時期
期日指定
設備
 
建築確認番号
HPA-25-11906-1
開発許可番号
-
取引態様
媒介
取引条件の有効期限
2026年3月24日
  • ※ 図面と現況が異なる場合は、現況を優先とします。
  • ※ 掲載物件は成約済み・売却中止となる場合があります。
  • ※ 成約の際は仲介手数料とこれにかかる消費税が必要です。(当社が売主の物件除く)
ローンシミュレーションを見る

ローンシミュレーション

この物件でローンシミュレーションをするこの物件を購入した場合の、月々の支払い価格の一例です。
返済期間
金利
ボーナス返済の割合
借入金額
万円
毎月の返済額
ボーナス月の返済額
  • ●実際の返済額とは諸条件によって異なります。目安としてご利用ください。
  • ●金利は返済期間を通して変わらないものとし、元利均等方式(元金と利息を合計した、毎月の返済額が同じになる)で計算しました。
  • ●ボーナス返済については、借入日とボーナス月の間隔によって、計算の結果が少し異なります。
周辺施設を見る

よくある質問

  • 「グラファーレ北名古屋市六ツ師8期 全4棟 2号棟」の購入に必要な頭金はどのくらいですか?

    物件価格の1〜2割程度が頭金の相場です。ファミリアホームサービスは、ファイナンシャルプランナー資格を持つスタッフが多数在籍しています。各銀行の審査条件やフラット35の金利情報などにも詳しいので、マイホーム購入に向けて、お金に関するご心配にも、誠心誠意対応いたします。お気軽にお問い合わせください。→お問い合わせはこちら

  • 資料はもらえますか

    はい、お渡しいたします!メールかお電話にて資料をご請求ください。ファミリアホームサービスは名古屋近郊に各拠点があり、地域密着が強みです。間取りや物件概要はもちろん、生活施設や教育施設など、周辺環境などの詳細もお伝えできる資料をお渡しできます。→お問い合わせはこちら

  • 見学することはできますか。

    メールかお電話にてご予約いただければ、待ち時間なくご案内させていただきます。物件見学はここに住んだら・・・のイメージが大切です。見学の際には、物件の特徴や周辺環境についてわかりやすく詳しくお伝えいたします。2〜3件見学される方が多いですが、もちろんもっと多くのご見学でも対応させていただきますのでお気軽にどうぞ!→来店予約はこちら

  • 「グラファーレ北名古屋市六ツ師8期 全4棟 2号棟」購入の際、不動産取得税の軽減措置は受けられますか?

    不動産取得税の軽減措置を受けるには、様々な諸条件があります。ですので、メールかお電話にて一度ご相談ください。ファミリアホームサービスは、グループ会社に税理士法人もあり、税金に関しても高い専門知識を持った経験豊富なスタッフが在籍しています。お気軽にお問い合わせください。→お問い合わせはこちら

←北名古屋市新築一戸建ての一覧を見る [グラファーレ北名古屋市六ツ師8期 全4棟 2号棟]のお問い合わせはお気軽にどうぞ。私たちがお待ちしております。
ハウスドゥ  北区城北のスタッフ

ハウスドゥ 北区城北

  • 住所:愛知県名古屋市北区中切町四丁目84-1
  • TEL:0120-57-8088
  • FAX:052-908-8089
  • 定休日:水曜日(祝日の場合は営業)、年末年始
  • 営業時間:10:00~18:00
【グラファーレ北名古屋市六ツ師8期 全4棟 2号棟】は北名古屋市の新築一戸建て、2,892万円。お問い合わせはファミリアホームサービスまで。 【グラファーレ北名古屋市六ツ師8期 全4棟 2号棟】は北名古屋市の新築一戸建て、2,892万円。お問い合わせはファミリアホームサービスまで。