1,480万円
中古一戸建て

岐阜市日野西3丁目 中古一戸建て

[最寄り駅] 名鉄各務原線「田神」駅/名鉄各務原線「切通」駅
[所在地] 岐阜市日野西3丁目
1,480万円

【LDK15畳以上・庭付きでゆとりある住空間】●LDK15畳以上●ワイドバルコニー・庭付き●コンロ二口・カウンターキッチン・バス1坪以上●日野小学校/長森中学校●
お問い合わせ番号:4466513

築年月
1990年9月
建物面積
158.34m²
土地面積
258m²
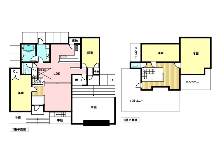
DB間取り図
築年月
1990年9月
建物面積
158.34m²
土地面積
258m²
DB間取り図

周辺地図

→google map
お問い合わせはこちら

[岐阜市日野西3丁目 中古一戸建て]のおすすめポイント

この物件は名鉄各務原線「田神」駅から車で約10分、岐阜バス「JAぎふ日野支店前」停徒歩約1分にある1990年(平成2年)9月築の中古一戸建てです。周辺は第一種住居地域に該当します。住居の環境を守るための地域で、3000㎡までの店舗・事務所・ホテルなどは建てられる地域です。日野小学校まで徒歩約4分、長森中学校まで徒歩約55分です。平和堂東海・日野店まで徒歩約22分、ゲンキー日野南店まで徒歩約13分、セブンイレブン 岐阜日野南店まで徒歩約16分、岐阜病院まで徒歩約19分、雄日ヶ丘公園まで徒歩約20分など、各種生活施設は徒歩・車での利用が可能です。敷地は約258㎡(約78.04坪)、南側幅員約4.0mの道路に接道しています。建物は鉄骨造2階建て、延床面積約158.34㎡の4LDKで、LDK15畳以上、ワイドバルコニー、庭付き。コンロ二口・カウンターキッチン・バス1坪以上・照明器具・和室など充実した設備が整い、駐車スペースは普通車2台分あります。閑静な住宅街で陽当たりも良好、家族で快適に過ごせる物件です。

物件概要

所在地
岐阜市日野西3丁目
交通
名鉄各務原線田神駅徒歩0分
名鉄各務原線切通駅徒歩0分
学校区
岐阜市立日野小学校 日野小学校の不動産の購入→
岐阜市立長森中学校 長森中学校の不動産の購入→
間取り
4LDK
価格
1,480万円
構造/階数
鉄骨/2階
築年月
1990年9月
土地面積
258m²
建物面積
158.34m²
接道
南側4m公道に接道
用途地域
1種住居
都市計画
市街化区域
建ぺい率
60%
容積率
200%
地目
宅地
総戸数
1戸
駐車場
有 普通車:2台 
現況
引き渡し可能時期
設備
 
取引態様
媒介
取引条件の有効期限
2026年3月17日
  • ※ 図面と現況が異なる場合は、現況を優先とします。
  • ※ 掲載物件は成約済み・売却中止となる場合があります。
  • ※ 成約の際は仲介手数料とこれにかかる消費税が必要です。(当社が売主の物件除く)
ローンシミュレーションを見る

ローンシミュレーション

この物件でローンシミュレーションをするこの物件を購入した場合の、月々の支払い価格の一例です。
返済期間
金利
ボーナス返済の割合
借入金額
万円
毎月の返済額
ボーナス月の返済額
  • ●実際の返済額とは諸条件によって異なります。目安としてご利用ください。
  • ●金利は返済期間を通して変わらないものとし、元利均等方式(元金と利息を合計した、毎月の返済額が同じになる)で計算しました。
  • ●ボーナス返済については、借入日とボーナス月の間隔によって、計算の結果が少し異なります。
周辺施設を見る

よくある質問

  • 「岐阜市日野西3丁目 中古一戸建て」の購入に必要な頭金はどのくらいですか?

    物件価格の1〜2割程度が頭金の相場です。ファミリアホームサービスは、ファイナンシャルプランナー資格を持つスタッフが多数在籍しています。各銀行の審査条件やフラット35の金利情報などにも詳しいので、マイホーム購入に向けて、お金に関するご心配にも、誠心誠意対応いたします。お気軽にお問い合わせください。→お問い合わせはこちら

  • 資料はもらえますか

    はい、お渡しいたします!メールかお電話にて資料をご請求ください。ファミリアホームサービスは名古屋近郊に各拠点があり、地域密着が強みです。間取りや物件概要はもちろん、生活施設や教育施設など、周辺環境などの詳細もお伝えできる資料をお渡しできます。→お問い合わせはこちら

  • 見学することはできますか。

    メールかお電話にてご予約いただければ、待ち時間なくご案内させていただきます。物件見学はここに住んだら・・・のイメージが大切です。見学の際には、物件の特徴や周辺環境についてわかりやすく詳しくお伝えいたします。2〜3件見学される方が多いですが、もちろんもっと多くのご見学でも対応させていただきますのでお気軽にどうぞ!→来店予約はこちら

  • 「岐阜市日野西3丁目 中古一戸建て」購入の際、不動産取得税の軽減措置は受けられますか?

    不動産取得税の軽減措置を受けるには、様々な諸条件があります。ですので、メールかお電話にて一度ご相談ください。ファミリアホームサービスは、グループ会社に税理士法人もあり、税金に関しても高い専門知識を持った経験豊富なスタッフが在籍しています。お気軽にお問い合わせください。→お問い合わせはこちら

←岐阜市中古一戸建ての一覧を見る [岐阜市日野西3丁目 中古一戸建て]のお問い合わせはお気軽にどうぞ。私たちがお待ちしております。
ハウスドゥ  岐阜長良のスタッフ

ハウスドゥ 岐阜長良

  • 住所:岐阜市上土居1丁目5番2号 プラズマビル1階A号室
  • TEL:0120-77-8510
  • FAX:058-215-8520
  • 定休日:第3火曜日・水曜日(祝日の場合は営業)、年末年始
  • 営業時間:10:00~18:00
【岐阜市日野西3丁目 中古一戸建て】は岐阜市の中古一戸建て、1,480万円。お問い合わせはファミリアホームサービスまで。 【岐阜市日野西3丁目 中古一戸建て】は岐阜市の中古一戸建て、1,480万円。お問い合わせはファミリアホームサービスまで。