2,580万円
新築一戸建て

LiveleGardenS津島市宇治町字茶ノ里 全3棟 1号棟 新築一戸建て

[最寄り駅] 名鉄津島線「青塚」駅/名鉄津島線「勝幡」駅/名鉄津島線「藤浪」駅
[所在地] 津島市宇治町字茶ノ里 (津島市の不動産の購入と売却→)
オープンハウス★現地案内会★ハウスドゥ 津島 時間/10:00〜18:00 来場予約

【4LDKで家族それぞれの空間を確保】●LDK15帖以上・2面採光●駐車スペース普通車2台分あり●長期優良住宅認定取得予定・フラット35S対応●蛭間小学校/神守中学校●
お問い合わせ番号:4321442

築年月
2026年4月
建物面積
107.66m²
土地面積
170.55m²
DB間取り図
築年月
2026年4月
建物面積
107.66m²
土地面積
170.55m²
DB間取り図

周辺地図

→google map
お問い合わせはこちら

[LiveleGardenS津島市宇治町字茶ノ里 全3棟 1号棟 新築一戸建て]のおすすめポイント

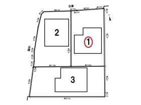
この物件は名鉄津島線「青塚」駅から徒歩約22分、津島市宇治町字茶ノ里にある「LiveleGardenS津島市宇治町字茶ノ里」全3棟の1号棟・新築一戸建てです。都市計画区域は調整区域ですが、開発許可等による分譲地内のため再建築可能な物件となっています。周辺は用途地域の指定がなく、住宅が点在する落ち着いた環境で、比較的静かな住環境が広がります。敷地は約170.55㎡で、北側公道幅員約3.1mに接道しており、前面道路が4m未満のため約5.14㎡のセットバックがあります。建物は木造2階建て、延床面積約107.66㎡の4LDK。LDKは15帖以上を確保し、ご家族が自然と集まる空間設計となっています。全居室収納やウォークインクローゼット、床下収納を備え、住空間をすっきりと保てます。システムキッチンや浄水器、浴室乾燥機、追焚機能、モニタ付インターホンなど、日々の暮らしを支える設備も充実。駐車スペースは普通車2台分を確保しています。蛭間小学校まで徒歩約13分、神守中学校まで徒歩約28分の立地で、長期優良住宅認定や住宅性能評価書取得予定、フラット35S対応と、将来を見据えた安心感のある新築戸建てです。

物件概要

所在地
津島市宇治町字茶ノ里
交通
名鉄津島線青塚駅徒歩22分
名鉄津島線勝幡駅徒歩27分
名鉄津島線藤浪駅徒歩30分
学校区
津島市立蛭間小学校 蛭間小学校の不動産の購入→
津島市立神守中学校 神守中学校の不動産の購入→
間取り
4LDK
価格
2,580万円
構造/階数
木造/2階
完成予定年月
2026年4月
開発面積
-
土地面積
170.55m²
建物面積
107.66m²
接道
北側3.1m公道に接道
用途地域
指定無
都市計画
調整区域
建ぺい率
60%
容積率
200%
地目
宅地
総戸数
1戸
駐車場
有 普通車:2台 
現況
建築中
引き渡し可能時期
期日指定
設備
 
建築確認番号
第KS125-0420-59962号
開発許可番号
-
取引態様
媒介
取引条件の有効期限
2026年3月23日
  • ※ 図面と現況が異なる場合は、現況を優先とします。
  • ※ 掲載物件は成約済み・売却中止となる場合があります。
  • ※ 成約の際は仲介手数料とこれにかかる消費税が必要です。(当社が売主の物件除く)
ローンシミュレーションを見る

ローンシミュレーション

この物件でローンシミュレーションをするこの物件を購入した場合の、月々の支払い価格の一例です。
返済期間
金利
ボーナス返済の割合
借入金額
万円
毎月の返済額
ボーナス月の返済額
  • ●実際の返済額とは諸条件によって異なります。目安としてご利用ください。
  • ●金利は返済期間を通して変わらないものとし、元利均等方式(元金と利息を合計した、毎月の返済額が同じになる)で計算しました。
  • ●ボーナス返済については、借入日とボーナス月の間隔によって、計算の結果が少し異なります。
周辺施設を見る

よくある質問

  • 「LiveleGardenS津島市宇治町字茶ノ里 全3棟 1号棟 新築一戸建て」の購入に必要な頭金はどのくらいですか?

    物件価格の1〜2割程度が頭金の相場です。ファミリアホームサービスは、ファイナンシャルプランナー資格を持つスタッフが多数在籍しています。各銀行の審査条件やフラット35の金利情報などにも詳しいので、マイホーム購入に向けて、お金に関するご心配にも、誠心誠意対応いたします。お気軽にお問い合わせください。→お問い合わせはこちら

  • 資料はもらえますか

    はい、お渡しいたします!メールかお電話にて資料をご請求ください。ファミリアホームサービスは名古屋近郊に各拠点があり、地域密着が強みです。間取りや物件概要はもちろん、生活施設や教育施設など、周辺環境などの詳細もお伝えできる資料をお渡しできます。→お問い合わせはこちら

  • 見学することはできますか。

    メールかお電話にてご予約いただければ、待ち時間なくご案内させていただきます。物件見学はここに住んだら・・・のイメージが大切です。見学の際には、物件の特徴や周辺環境についてわかりやすく詳しくお伝えいたします。2〜3件見学される方が多いですが、もちろんもっと多くのご見学でも対応させていただきますのでお気軽にどうぞ!→来店予約はこちら

  • 「LiveleGardenS津島市宇治町字茶ノ里 全3棟 1号棟 新築一戸建て」購入の際、不動産取得税の軽減措置は受けられますか?

    不動産取得税の軽減措置を受けるには、様々な諸条件があります。ですので、メールかお電話にて一度ご相談ください。ファミリアホームサービスは、グループ会社に税理士法人もあり、税金に関しても高い専門知識を持った経験豊富なスタッフが在籍しています。お気軽にお問い合わせください。→お問い合わせはこちら

←津島市新築一戸建ての一覧を見る [LiveleGardenS津島市宇治町字茶ノ里 全3棟 1号棟 新築一戸建て]のお問い合わせはお気軽にどうぞ。私たちがお待ちしております。
ハウスドゥ  津島のスタッフ

ハウスドゥ 津島

  • 住所:愛知県津島市柳原町3-1-1(ロイヤルホームセンター津島店内)
  • TEL:0120-662-015
  • FAX:0567-22-2018
  • 定休日:水曜日(祝日の場合は営業)、年末年始
  • 営業時間:10:00~18:00
【LiveleGardenS津島市宇治町字茶ノ里 全3棟 1号棟 新築一戸建て】は津島市の新築一戸建て、2,580万円。お問い合わせはファミリアホームサービスまで。 【LiveleGardenS津島市宇治町字茶ノ里 全3棟 1号棟 新築一戸建て】は津島市の新築一戸建て、2,580万円。お問い合わせはファミリアホームサービスまで。