1,380万円
中古一戸建て 価格変更

名古屋市港区惟信町2丁目 中古一戸建て

[最寄り駅] あおなみ線「荒子川公園」駅/名古屋市営地下鉄名港線「東海通」駅
[所在地] 名古屋市港区惟信町2丁目 (名古屋市港区の不動産の購入と売却→)

●○価格変更○●【2024年1月リフォーム物件】●新しい設備で新生活をスタートできます●ビルトインガレージ1台●和室あり●南面バルコニーで日当たり良好●全居室6帖以上●整形地●高木小学校/宝神中学校●
お問い合わせ番号:3774932

築年月
1977年9月
建物面積
93.45m²
土地面積
92.99m²
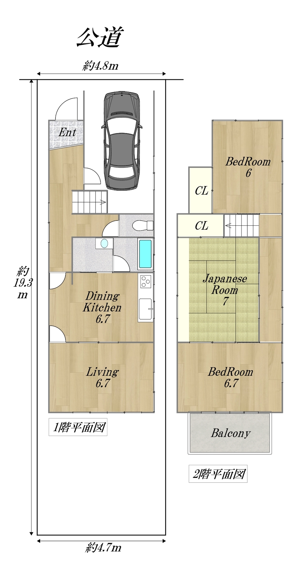
DB間取り図
築年月
1977年9月
建物面積
93.45m²
土地面積
92.99m²
DB間取り図

周辺地図

→google map
お問い合わせはこちら

[名古屋市港区惟信町2丁目 中古一戸建て]のおすすめポイント

この物件は名古屋臨海高速鉄道「荒子川公園」駅から徒歩25分、1977年(昭和52年)09月築の中古一戸建てです。周辺は第1種住居地域に該当し、住居の環境を守るための地域と定められています。一戸建て・マンションや事業所などが立ち並んでいます。ヤマナカみなと当知店まで徒歩12分 (約900m)、スギ薬局油屋店まで徒歩11分 (約850m)、はっとり耳鼻咽喉科まで徒歩6分 (約410m)など、各種生活施設は徒歩15分圏内に揃っている生活に便利な住環境です。国道23号線まで約1.6㎞(車で約5分)、名古屋第二環状自動車道「南陽料金所」まで約3.9㎞(車で約8分)。高木小学校まで徒歩12分、宝神中学校まで徒歩29分。駅までの道のりはほぼ平坦。区画はほぼ整理されています。敷地は土地面積は92.99㎡(28.12坪)。北側幅員約7.2mの道路に約4.60m接道しています。建物は木造2階建て、間取りは延床面積が93.45㎡の4DK。駐車スペースは1台分。2024年1月リフォーム【キッチン、浴室、トイレ、洗面所、給湯器、内装全面(床・壁・天井・建具)】。2023年12月リフォーム【外壁】。

物件概要

所在地
名古屋市港区惟信町2丁目
交通
あおなみ線荒子川公園駅徒歩25分
名古屋市営地下鉄名港線東海通駅バス12分「惟信町」停 東海通駅の不動産の購入→
学校区
名古屋市立高木小学校 高木小学校の不動産の購入→
名古屋市立宝神中学校 宝神中学校の不動産の購入→
間取り
4DK
価格
1,380万円
構造/階数
木造/2階
築年月
1977年9月
土地面積
92.99m²
建物面積
93.45m²
接道
北西側7m公道に接道
用途地域
1種住居
都市計画
市街化区域
建ぺい率
60%
容積率
200%
地目
宅地
総戸数
1戸
駐車場
有 普通車:1台 
現況
引き渡し可能時期
相談
設備
  -
取引態様
媒介
取引条件の有効期限
2026年3月25日
  • ※ 図面と現況が異なる場合は、現況を優先とします。
  • ※ 掲載物件は成約済み・売却中止となる場合があります。
  • ※ 成約の際は仲介手数料とこれにかかる消費税が必要です。(当社が売主の物件除く)
ローンシミュレーションを見る

ローンシミュレーション

この物件でローンシミュレーションをするこの物件を購入した場合の、月々の支払い価格の一例です。
返済期間
金利
ボーナス返済の割合
借入金額
万円
毎月の返済額
ボーナス月の返済額
  • ●実際の返済額とは諸条件によって異なります。目安としてご利用ください。
  • ●金利は返済期間を通して変わらないものとし、元利均等方式(元金と利息を合計した、毎月の返済額が同じになる)で計算しました。
  • ●ボーナス返済については、借入日とボーナス月の間隔によって、計算の結果が少し異なります。
周辺施設を見る

よくある質問

  • 「名古屋市港区惟信町2丁目 中古一戸建て」の購入に必要な頭金はどのくらいですか?

    物件価格の1〜2割程度が頭金の相場です。ファミリアホームサービスは、ファイナンシャルプランナー資格を持つスタッフが多数在籍しています。各銀行の審査条件やフラット35の金利情報などにも詳しいので、マイホーム購入に向けて、お金に関するご心配にも、誠心誠意対応いたします。お気軽にお問い合わせください。→お問い合わせはこちら

  • 資料はもらえますか

    はい、お渡しいたします!メールかお電話にて資料をご請求ください。ファミリアホームサービスは名古屋近郊に各拠点があり、地域密着が強みです。間取りや物件概要はもちろん、生活施設や教育施設など、周辺環境などの詳細もお伝えできる資料をお渡しできます。→お問い合わせはこちら

  • 見学することはできますか。

    メールかお電話にてご予約いただければ、待ち時間なくご案内させていただきます。物件見学はここに住んだら・・・のイメージが大切です。見学の際には、物件の特徴や周辺環境についてわかりやすく詳しくお伝えいたします。2〜3件見学される方が多いですが、もちろんもっと多くのご見学でも対応させていただきますのでお気軽にどうぞ!→来店予約はこちら

  • 「名古屋市港区惟信町2丁目 中古一戸建て」購入の際、不動産取得税の軽減措置は受けられますか?

    不動産取得税の軽減措置を受けるには、様々な諸条件があります。ですので、メールかお電話にて一度ご相談ください。ファミリアホームサービスは、グループ会社に税理士法人もあり、税金に関しても高い専門知識を持った経験豊富なスタッフが在籍しています。お気軽にお問い合わせください。→お問い合わせはこちら

←名古屋市港区中古一戸建ての一覧を見る [名古屋市港区惟信町2丁目 中古一戸建て]のお問い合わせはお気軽にどうぞ。私たちがお待ちしております。
ハウスドゥ  港区東海通のスタッフ

ハウスドゥ 港区東海通

  • 住所:名古屋市港区七番町三丁目13番地2 コスモハイム七番町 1-N号室
  • TEL:0120-016-131
  • FAX:052-355-6135
  • 定休日:水曜日(祝日の場合は営業)、年末年始
  • 営業時間:10:00~18:00
【名古屋市港区惟信町2丁目 中古一戸建て】は名古屋市港区の中古一戸建て、1,380万円。お問い合わせはファミリアホームサービスまで。 【名古屋市港区惟信町2丁目 中古一戸建て】は名古屋市港区の中古一戸建て、1,380万円。お問い合わせはファミリアホームサービスまで。