1,280万円
中古一戸建て NEW

●名古屋市港区宝神3丁目 中古一戸建

[最寄り駅] あおなみ線「稲永」駅/あおなみ線「野跡」駅
[所在地] 名古屋市港区宝神3丁目 (名古屋市港区の不動産の購入と売却→)
オープンハウス★現地案内会★ハウスドゥ 港区東海通 時間/10:00〜18:00 来場予約

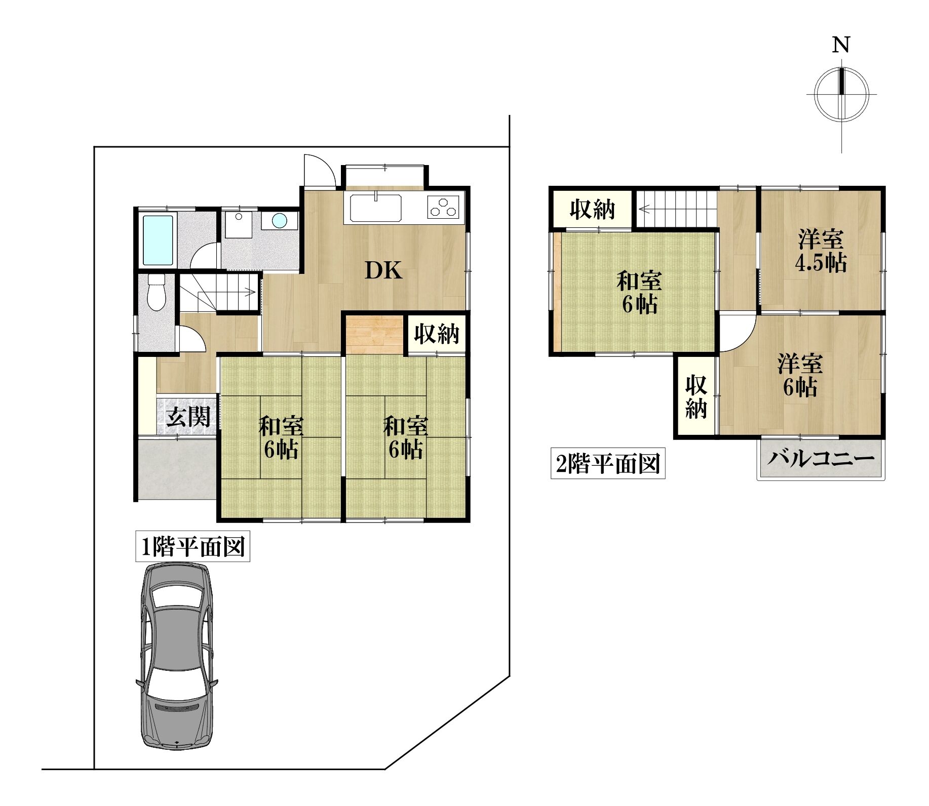
【南東角地で陽当たり良好な5DKの住まい】●ナフコ宝神店まで徒歩5分で買い物至便な環境●敷地約31坪の整形地につき建築用地としても検討可能●カースペース1台分あり●港西小学校/宝神中学校●
お問い合わせ番号:4583807

築年月
1979年8月
建物面積
85.16m²
土地面積
103.91m²
DB間取り図
築年月
1979年8月
建物面積
85.16m²
土地面積
103.91m²
DB間取り図

周辺地図

→google map
お問い合わせはこちら

[●名古屋市港区宝神3丁目 中古一戸建]のおすすめポイント

この物件はあおなみ線「稲永」駅から南西方向へ徒歩約14分、名古屋市港区宝神3丁目に位置する中古一戸建てです。南側幅員約6.5m、東側幅員約10.0mの公道に面した開放感のある角地で、約103.91㎡(約31.43坪)の整形地です。ナフコ宝神店まで約360m、ミニストップ名古屋宝神店まで約360m、V・drug宝神店まで約330mと、日々のお買い物に便利な施設が徒歩5分圏内に揃う大変生活しやすい環境が整っています。港西小学校まで徒歩約8分、宝神中学校まで徒歩約12分。建物は1979年8月築の木造2階建て、間取りはゆとりのある5DKです。全居室に窓があり、角地ならではの陽当たりや通風の良さが大きな魅力です。なお、建物に傾きがございますので、現況を活かしたリノベーションのベースとして、あるいは新築用の土地としてもじっくりご検討いただけます。普通車1台分のカースペースも備わっています。現地と併せてスーパーやドラッグストアなどの周辺環境も詳しくご紹介いたします。平日のご見学も承っておりますので、どうぞお気軽にお問い合わせください。

物件概要

所在地
名古屋市港区宝神3丁目
交通
あおなみ線稲永駅徒歩14分
あおなみ線野跡駅バス10分「宝神荘」停
学校区
名古屋市立港西小学校 港西小学校の不動産の購入→
名古屋市立宝神中学校 宝神中学校の不動産の購入→
間取り
5DK
価格
1,280万円
構造/階数
木造/2階
築年月
1979年8月
土地面積
103.91m²
建物面積
85.16m²
接道
南側6.5m公道に6.83m接道
東側10m公道に9.73m接道
用途地域
1種住居
都市計画
市街化区域
建ぺい率
60%
容積率
200%
地目
宅地
総戸数
-
駐車場
有 普通車:1台 
現況
引き渡し可能時期
相談
設備
 
取引態様
専任媒介
取引条件の有効期限
2026年3月23日
  • ※ 図面と現況が異なる場合は、現況を優先とします。
  • ※ 掲載物件は成約済み・売却中止となる場合があります。
  • ※ 成約の際は仲介手数料とこれにかかる消費税が必要です。(当社が売主の物件除く)
ローンシミュレーションを見る

ローンシミュレーション

この物件でローンシミュレーションをするこの物件を購入した場合の、月々の支払い価格の一例です。
返済期間
金利
ボーナス返済の割合
借入金額
万円
毎月の返済額
ボーナス月の返済額
  • ●実際の返済額とは諸条件によって異なります。目安としてご利用ください。
  • ●金利は返済期間を通して変わらないものとし、元利均等方式(元金と利息を合計した、毎月の返済額が同じになる)で計算しました。
  • ●ボーナス返済については、借入日とボーナス月の間隔によって、計算の結果が少し異なります。
周辺施設を見る

よくある質問

  • 「●名古屋市港区宝神3丁目 中古一戸建」の購入に必要な頭金はどのくらいですか?

    物件価格の1〜2割程度が頭金の相場です。ファミリアホームサービスは、ファイナンシャルプランナー資格を持つスタッフが多数在籍しています。各銀行の審査条件やフラット35の金利情報などにも詳しいので、マイホーム購入に向けて、お金に関するご心配にも、誠心誠意対応いたします。お気軽にお問い合わせください。→お問い合わせはこちら

  • 資料はもらえますか

    はい、お渡しいたします!メールかお電話にて資料をご請求ください。ファミリアホームサービスは名古屋近郊に各拠点があり、地域密着が強みです。間取りや物件概要はもちろん、生活施設や教育施設など、周辺環境などの詳細もお伝えできる資料をお渡しできます。→お問い合わせはこちら

  • 見学することはできますか。

    メールかお電話にてご予約いただければ、待ち時間なくご案内させていただきます。物件見学はここに住んだら・・・のイメージが大切です。見学の際には、物件の特徴や周辺環境についてわかりやすく詳しくお伝えいたします。2〜3件見学される方が多いですが、もちろんもっと多くのご見学でも対応させていただきますのでお気軽にどうぞ!→来店予約はこちら

  • 「●名古屋市港区宝神3丁目 中古一戸建」購入の際、不動産取得税の軽減措置は受けられますか?

    不動産取得税の軽減措置を受けるには、様々な諸条件があります。ですので、メールかお電話にて一度ご相談ください。ファミリアホームサービスは、グループ会社に税理士法人もあり、税金に関しても高い専門知識を持った経験豊富なスタッフが在籍しています。お気軽にお問い合わせください。→お問い合わせはこちら

←名古屋市港区中古一戸建ての一覧を見る [●名古屋市港区宝神3丁目 中古一戸建]のお問い合わせはお気軽にどうぞ。私たちがお待ちしております。
ハウスドゥ  港区東海通のスタッフ

ハウスドゥ 港区東海通

  • 住所:名古屋市港区七番町三丁目13番地2 コスモハイム七番町 1-N号室
  • TEL:0120-016-131
  • FAX:052-355-6135
  • 定休日:水曜日(祝日の場合は営業)、年末年始
  • 営業時間:10:00~18:00
【●名古屋市港区宝神3丁目 中古一戸建】は名古屋市港区の中古一戸建て、1,280万円。お問い合わせはファミリアホームサービスまで。 【●名古屋市港区宝神3丁目 中古一戸建】は名古屋市港区の中古一戸建て、1,280万円。お問い合わせはファミリアホームサービスまで。