3,080万円
新築一戸建て NEW

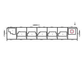
リーブルガーデン四日市市楠町北五味塚第10 全7棟 7号棟 新築一戸建て

[最寄り駅] 近鉄名古屋線「北楠」駅/近鉄名古屋線「楠」駅
[所在地] 四日市市楠町北五味塚
3,080万円

【北楠駅徒歩10分◎南向き5LDK◎楠小徒歩6分】●SICや2箇所のWIC、パントリー完備で片付けが捗るゆとりある間取り●家族の会話が弾むリビング階段仕様●楠小学校/楠中学校●
お問い合わせ番号:4624125

築年月
2026年4月
建物面積
133.03m²
土地面積
184.72m²
DB間取り図
築年月
2026年4月
建物面積
133.03m²
土地面積
184.72m²
DB間取り図

周辺地図

→google map
お問い合わせはこちら

[リーブルガーデン四日市市楠町北五味塚第10 全7棟 7号棟 新築一戸建て]のおすすめポイント

近鉄名古屋線「北楠」駅から南東方向へ徒歩約10分にある「リーブルガーデン四日市市楠町北五味塚第10」全7棟の6号棟です。2026年9月完成予定の新築一戸建てで、周辺は第2種中高層住居専用地域に該当し、中高層住宅の良好な住環境を保護するための地域と定められています。主に一戸建てやマンションなどが立ち並んでいます。楠小学校まで徒歩約6分、楠中学校まで徒歩約8分と、子育てにも安心。学校行事の際も無理なく通える距離ですね。駅までの道のりはほぼ平坦で、徒歩10分圏内に揃う住環境です。敷地は土地面積が約189.22㎡(約57.23坪)あり、北側幅員約5.0mの公道に約12.68m接道した整形地です。建物は木造2階建て、間取りは延床面積約106㎡の5LDK。全居室に収納を備え、2箇所のウォークインクローゼットやシューズインクローク、パントリー(食品庫)など、収納力に優れた設計が特徴です。南向きで陽当りも良く、リビング階段を採用したご家族の繋がりを感じられる住まいです。お問い合わせを心よりお待ちしております。

物件概要

所在地
四日市市楠町北五味塚
交通
近鉄名古屋線北楠駅徒歩10分
近鉄名古屋線楠駅徒歩23分
学校区
四日市市立楠小学校 楠小学校の不動産の購入→
四日市市立楠中学校 楠中学校の不動産の購入→
間取り
4LDK
価格
3,080万円
構造/階数
木造/2階
完成予定年月
2026年4月
開発面積
-
土地面積
184.72m²
建物面積
133.03m²
接道
北側5m公道に9.82m接道
東側5.4m公道に12.09m接道
用途地域
1種中高
都市計画
市街化区域
建ぺい率
60%
容積率
200%
地目
宅地
総戸数
7戸
駐車場
有 
現況
建築中
引き渡し可能時期
期日指定
設備
 
建築確認番号
第KS126-0420-50678号
開発許可番号
-
取引態様
媒介
取引条件の有効期限
2026年3月25日
  • ※ 図面と現況が異なる場合は、現況を優先とします。
  • ※ 掲載物件は成約済み・売却中止となる場合があります。
  • ※ 成約の際は仲介手数料とこれにかかる消費税が必要です。(当社が売主の物件除く)
ローンシミュレーションを見る

ローンシミュレーション

この物件でローンシミュレーションをするこの物件を購入した場合の、月々の支払い価格の一例です。
返済期間
金利
ボーナス返済の割合
借入金額
万円
毎月の返済額
ボーナス月の返済額
  • ●実際の返済額とは諸条件によって異なります。目安としてご利用ください。
  • ●金利は返済期間を通して変わらないものとし、元利均等方式(元金と利息を合計した、毎月の返済額が同じになる)で計算しました。
  • ●ボーナス返済については、借入日とボーナス月の間隔によって、計算の結果が少し異なります。
周辺施設を見る

よくある質問

  • 「リーブルガーデン四日市市楠町北五味塚第10 全7棟 7号棟 新築一戸建て」の購入に必要な頭金はどのくらいですか?

    物件価格の1〜2割程度が頭金の相場です。ファミリアホームサービスは、ファイナンシャルプランナー資格を持つスタッフが多数在籍しています。各銀行の審査条件やフラット35の金利情報などにも詳しいので、マイホーム購入に向けて、お金に関するご心配にも、誠心誠意対応いたします。お気軽にお問い合わせください。→お問い合わせはこちら

  • 資料はもらえますか

    はい、お渡しいたします!メールかお電話にて資料をご請求ください。ファミリアホームサービスは名古屋近郊に各拠点があり、地域密着が強みです。間取りや物件概要はもちろん、生活施設や教育施設など、周辺環境などの詳細もお伝えできる資料をお渡しできます。→お問い合わせはこちら

  • 見学することはできますか。

    メールかお電話にてご予約いただければ、待ち時間なくご案内させていただきます。物件見学はここに住んだら・・・のイメージが大切です。見学の際には、物件の特徴や周辺環境についてわかりやすく詳しくお伝えいたします。2〜3件見学される方が多いですが、もちろんもっと多くのご見学でも対応させていただきますのでお気軽にどうぞ!→来店予約はこちら

  • 「リーブルガーデン四日市市楠町北五味塚第10 全7棟 7号棟 新築一戸建て」購入の際、不動産取得税の軽減措置は受けられますか?

    不動産取得税の軽減措置を受けるには、様々な諸条件があります。ですので、メールかお電話にて一度ご相談ください。ファミリアホームサービスは、グループ会社に税理士法人もあり、税金に関しても高い専門知識を持った経験豊富なスタッフが在籍しています。お気軽にお問い合わせください。→お問い合わせはこちら

←四日市市新築一戸建ての一覧を見る [リーブルガーデン四日市市楠町北五味塚第10 全7棟 7号棟 新築一戸建て]のお問い合わせはお気軽にどうぞ。私たちがお待ちしております。
ハウスドゥ  四日市松本街道のスタッフ

ハウスドゥ 四日市松本街道

  • 住所:三重県 四日市市松本3丁目8-7 ジーアイビルBLOOM 1A
  • TEL:0120-80-5015
  • FAX:059-328-5016
  • 定休日:水曜日(祝日の場合は営業)、年末年始
  • 営業時間:10:00~18:00
【リーブルガーデン四日市市楠町北五味塚第10 全7棟 7号棟 新築一戸建て】は四日市市の新築一戸建て、3,080万円。お問い合わせはファミリアホームサービスまで。 【リーブルガーデン四日市市楠町北五味塚第10 全7棟 7号棟 新築一戸建て】は四日市市の新築一戸建て、3,080万円。お問い合わせはファミリアホームサービスまで。