3,780万円
中古一戸建て

四日市市塩浜本町1丁目 中古一戸建て

[最寄り駅] 近鉄名古屋線「塩浜」駅/近鉄名古屋線「北楠」駅
[所在地] 四日市市塩浜本町1丁目
3,780万円

【広々とした空間と多用途利用が魅力の住まい】●全居室6畳以上のゆとりある間取り●ホームエレベーター付きで移動が快適●店舗付き住宅として利用可能●塩浜小学校/塩浜中学校●
お問い合わせ番号:4514437

築年月
1979年1月
建物面積
486.67m²
土地面積
402.21m²
DB間取り図
築年月
1979年1月
建物面積
486.67m²
土地面積
402.21m²
DB間取り図

周辺地図

→google map
お問い合わせはこちら

[四日市市塩浜本町1丁目 中古一戸建て]のおすすめポイント

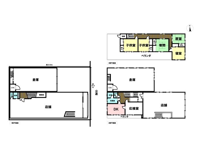
この物件は近鉄名古屋線「塩浜」駅から北方向へ徒歩約4分、1979年築の中古一戸建てです。周辺は商業地域に該当し、主として商業業務の利便増進を図るエリアで、住宅や小規模工場も建てられる地域として利用の幅が広い点が特徴です。塩浜小学校まで徒歩約9分、塩浜中学校まで徒歩約10分と教育施設が身近に揃い、通学時の負担も少なく安心して暮らせます。平坦な街並みが続き、整備された歩道も多く、日々の移動もしやすい環境です。敷地は約402.21㎡(約121.66坪)のゆとりある広さで、東側幅員約18.1mの公道に約16.40m接道した開放的な区画。建物は鉄骨造陸屋根の3階建で、延床面積約486.67㎡の5LDK。全居室6畳以上を備えたゆったりとした設計に加え、ホームエレベーター、L字型バルコニー、2面採光、和室8畳など、多様なライフスタイルに応える仕様が整っています。駐車スペースは2台分を確保。さらに事務所と倉庫を備えた店舗付き住宅としても利用可能で、住まいと仕事を一体化した暮らしや、用途を分けた活用など柔軟な使い方ができる点も大きな魅力です。

物件概要

所在地
四日市市塩浜本町1丁目
交通
近鉄名古屋線塩浜駅徒歩4分
近鉄名古屋線北楠駅徒歩25分
学校区
四日市市立塩浜小学校 塩浜小学校の不動産の購入→
四日市市立塩浜中学校 塩浜中学校の不動産の購入→
間取り
5LDK
価格
3,780万円
構造/階数
鉄骨/3階
築年月
1979年1月
土地面積
402.21m²
建物面積
486.67m²
接道
東側18.1m公道に16.4m接道
用途地域
商業
都市計画
市街化区域
建ぺい率
80%
容積率
400%
地目
宅地
総戸数
1戸
駐車場
有 普通車:2台 
現況
引き渡し可能時期
相談
設備
 
取引態様
媒介
取引条件の有効期限
2026年3月24日
  • ※ 図面と現況が異なる場合は、現況を優先とします。
  • ※ 掲載物件は成約済み・売却中止となる場合があります。
  • ※ 成約の際は仲介手数料とこれにかかる消費税が必要です。(当社が売主の物件除く)
ローンシミュレーションを見る

ローンシミュレーション

この物件でローンシミュレーションをするこの物件を購入した場合の、月々の支払い価格の一例です。
返済期間
金利
ボーナス返済の割合
借入金額
万円
毎月の返済額
ボーナス月の返済額
  • ●実際の返済額とは諸条件によって異なります。目安としてご利用ください。
  • ●金利は返済期間を通して変わらないものとし、元利均等方式(元金と利息を合計した、毎月の返済額が同じになる)で計算しました。
  • ●ボーナス返済については、借入日とボーナス月の間隔によって、計算の結果が少し異なります。
周辺施設を見る

よくある質問

  • 「四日市市塩浜本町1丁目 中古一戸建て」の購入に必要な頭金はどのくらいですか?

    物件価格の1〜2割程度が頭金の相場です。ファミリアホームサービスは、ファイナンシャルプランナー資格を持つスタッフが多数在籍しています。各銀行の審査条件やフラット35の金利情報などにも詳しいので、マイホーム購入に向けて、お金に関するご心配にも、誠心誠意対応いたします。お気軽にお問い合わせください。→お問い合わせはこちら

  • 資料はもらえますか

    はい、お渡しいたします!メールかお電話にて資料をご請求ください。ファミリアホームサービスは名古屋近郊に各拠点があり、地域密着が強みです。間取りや物件概要はもちろん、生活施設や教育施設など、周辺環境などの詳細もお伝えできる資料をお渡しできます。→お問い合わせはこちら

  • 見学することはできますか。

    メールかお電話にてご予約いただければ、待ち時間なくご案内させていただきます。物件見学はここに住んだら・・・のイメージが大切です。見学の際には、物件の特徴や周辺環境についてわかりやすく詳しくお伝えいたします。2〜3件見学される方が多いですが、もちろんもっと多くのご見学でも対応させていただきますのでお気軽にどうぞ!→来店予約はこちら

  • 「四日市市塩浜本町1丁目 中古一戸建て」購入の際、不動産取得税の軽減措置は受けられますか?

    不動産取得税の軽減措置を受けるには、様々な諸条件があります。ですので、メールかお電話にて一度ご相談ください。ファミリアホームサービスは、グループ会社に税理士法人もあり、税金に関しても高い専門知識を持った経験豊富なスタッフが在籍しています。お気軽にお問い合わせください。→お問い合わせはこちら

←四日市市中古一戸建ての一覧を見る [四日市市塩浜本町1丁目 中古一戸建て]のお問い合わせはお気軽にどうぞ。私たちがお待ちしております。
ハウスドゥ  四日市松本街道のスタッフ

ハウスドゥ 四日市松本街道

  • 住所:三重県 四日市市松本3丁目8-7 ジーアイビルBLOOM 1A
  • TEL:0120-80-5015
  • FAX:059-328-5016
  • 定休日:水曜日(祝日の場合は営業)、年末年始
  • 営業時間:10:00~18:00
【四日市市塩浜本町1丁目 中古一戸建て】は四日市市の中古一戸建て、3,780万円。お問い合わせはファミリアホームサービスまで。 【四日市市塩浜本町1丁目 中古一戸建て】は四日市市の中古一戸建て、3,780万円。お問い合わせはファミリアホームサービスまで。