3,290万円
新築一戸建て

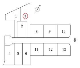
リナージュ名古屋市港区船頭場1丁目 全13区画 3号棟 新築一戸建て

[最寄り駅] 近鉄名古屋線「伏屋」駅/近鉄名古屋線「戸田」駅
[所在地] 名古屋市港区船頭場1丁目 (名古屋市港区の不動産の購入と売却→)
オープンハウス★現地案内会★ハウスドゥ 港区東海通 時間/10:00〜18:00 来場予約

【LDK18帖以上の開放感ある住空間】●徒歩圏内に生活施設充実●全室南向きで明るい住まい●駐車3台可能●福田小学校/南陽中学校●
お問い合わせ番号:4488035

築年月
2026年2月
建物面積
103.51m²
土地面積
224.29m²
DB間取り図
築年月
2026年2月
建物面積
103.51m²
土地面積
224.29m²
DB間取り図

周辺地図

→google map
お問い合わせはこちら

[リナージュ名古屋市港区船頭場1丁目 全13区画 3号棟 新築一戸建て]のおすすめポイント

この物件は近鉄名古屋線「伏屋」駅から南方向へ徒歩約38分、名古屋市港区船頭場にある「リナージュ名古屋市港区船頭場1丁目」全13区画の3号棟です。周辺は準工業地域に該当し、主として工業の業務の利便の増進を図る地域で、住宅やお店は建てられますが、学校・病院・ホテルなどは建てられません。バロー東起店まで約1,880m、ドラッグスギヤマ南陽店まで約910m、岡本医院分院まで約650m(車で約3分)。幼稚園や保育園、公園や郵便局、コンビニも徒歩圏で、日々の暮らしをサポートしてくれる環境です。福田小学校まで徒歩約15分、南陽中学校まで徒歩約24分です。敷地は224.29㎡(約67.84坪)。東側幅員約3.8mの公道に接し、駐車スペースは3台分を確保しています。建物は木造2階建て・延床約103.51㎡の4LDKで、全室南向きの明るい住まい。LDKは18帖以上とゆとりがあり、3面採光で開放感のある空間が広がります。全居室収納や床下収納、ワイドバルコニーなど使い勝手のよい設備を備え、複層ガラスや24時間換気システム、省エネ給湯器、制震・耐震・免震構造など安心と快適さにも配慮されています。

物件概要

所在地
名古屋市港区船頭場1丁目
交通
近鉄名古屋線伏屋駅徒歩38分
近鉄名古屋線戸田駅徒歩42分
学校区
名古屋市立福田小学校 福田小学校の不動産の購入→
名古屋市立南陽中学校 南陽中学校の不動産の購入→
間取り
4LDK
価格
3,290万円
構造/階数
木造/2階
築年月
2026年2月
開発面積
-
土地面積
224.29m²
建物面積
103.51m²
接道
東側3.8m公道に接道
用途地域
準工業
都市計画
市街化区域
建ぺい率
60%
容積率
200%
地目
宅地
総戸数
-
駐車場
有 普通車:3台 
現況
完工済
引き渡し可能時期
設備
 
建築確認番号
第KS125-0420-58563号
開発許可番号
-
取引態様
媒介
取引条件の有効期限
2026年3月23日
  • ※ 図面と現況が異なる場合は、現況を優先とします。
  • ※ 掲載物件は成約済み・売却中止となる場合があります。
  • ※ 成約の際は仲介手数料とこれにかかる消費税が必要です。(当社が売主の物件除く)
ローンシミュレーションを見る

ローンシミュレーション

この物件でローンシミュレーションをするこの物件を購入した場合の、月々の支払い価格の一例です。
返済期間
金利
ボーナス返済の割合
借入金額
万円
毎月の返済額
ボーナス月の返済額
  • ●実際の返済額とは諸条件によって異なります。目安としてご利用ください。
  • ●金利は返済期間を通して変わらないものとし、元利均等方式(元金と利息を合計した、毎月の返済額が同じになる)で計算しました。
  • ●ボーナス返済については、借入日とボーナス月の間隔によって、計算の結果が少し異なります。
周辺施設を見る

よくある質問

  • 「リナージュ名古屋市港区船頭場1丁目 全13区画 3号棟 新築一戸建て」の購入に必要な頭金はどのくらいですか?

    物件価格の1〜2割程度が頭金の相場です。ファミリアホームサービスは、ファイナンシャルプランナー資格を持つスタッフが多数在籍しています。各銀行の審査条件やフラット35の金利情報などにも詳しいので、マイホーム購入に向けて、お金に関するご心配にも、誠心誠意対応いたします。お気軽にお問い合わせください。→お問い合わせはこちら

  • 資料はもらえますか

    はい、お渡しいたします!メールかお電話にて資料をご請求ください。ファミリアホームサービスは名古屋近郊に各拠点があり、地域密着が強みです。間取りや物件概要はもちろん、生活施設や教育施設など、周辺環境などの詳細もお伝えできる資料をお渡しできます。→お問い合わせはこちら

  • 見学することはできますか。

    メールかお電話にてご予約いただければ、待ち時間なくご案内させていただきます。物件見学はここに住んだら・・・のイメージが大切です。見学の際には、物件の特徴や周辺環境についてわかりやすく詳しくお伝えいたします。2〜3件見学される方が多いですが、もちろんもっと多くのご見学でも対応させていただきますのでお気軽にどうぞ!→来店予約はこちら

  • 「リナージュ名古屋市港区船頭場1丁目 全13区画 3号棟 新築一戸建て」購入の際、不動産取得税の軽減措置は受けられますか?

    不動産取得税の軽減措置を受けるには、様々な諸条件があります。ですので、メールかお電話にて一度ご相談ください。ファミリアホームサービスは、グループ会社に税理士法人もあり、税金に関しても高い専門知識を持った経験豊富なスタッフが在籍しています。お気軽にお問い合わせください。→お問い合わせはこちら

←名古屋市港区新築一戸建ての一覧を見る [リナージュ名古屋市港区船頭場1丁目 全13区画 3号棟 新築一戸建て]のお問い合わせはお気軽にどうぞ。私たちがお待ちしております。
ハウスドゥ  港区東海通のスタッフ

ハウスドゥ 港区東海通

  • 住所:名古屋市港区七番町三丁目13番地2 コスモハイム七番町 1-N号室
  • TEL:0120-016-131
  • FAX:052-355-6135
  • 定休日:水曜日(祝日の場合は営業)、年末年始
  • 営業時間:10:00~18:00
【リナージュ名古屋市港区船頭場1丁目 全13区画 3号棟 新築一戸建て】は名古屋市港区の新築一戸建て、3,290万円。お問い合わせはファミリアホームサービスまで。 【リナージュ名古屋市港区船頭場1丁目 全13区画 3号棟 新築一戸建て】は名古屋市港区の新築一戸建て、3,290万円。お問い合わせはファミリアホームサービスまで。