5,499万円
新築一戸建て 価格変更

ケイアイフィット名古屋市緑区徳重3丁目 全2棟 1号棟 新築一戸建て

[最寄り駅] 名古屋市営地下鉄桜通線「徳重」駅/名古屋市営地下鉄桜通線「神沢」駅
[所在地] 名古屋市緑区徳重3丁目
5,499万円
オープンハウス★現地案内会★ハウスドゥ みどり市民病院前 時間/10:00〜18:00 来場予約

【広々5LDK・南西向きで陽当たり良好】●システムキッチン・食器洗浄乾燥機完備●ウォークインクローゼット・床下収納付き●徳重小学校/扇台中学校●
お問い合わせ番号:4426816

築年月
2026年1月
建物面積
106.2m²
土地面積
168.96m²
DB間取り図
築年月
2026年1月
建物面積
106.2m²
土地面積
168.96m²
DB間取り図

周辺地図

→google map
お問い合わせはこちら

[ケイアイフィット名古屋市緑区徳重3丁目 全2棟 1号棟 新築一戸建て]のおすすめポイント

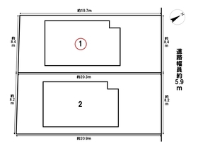
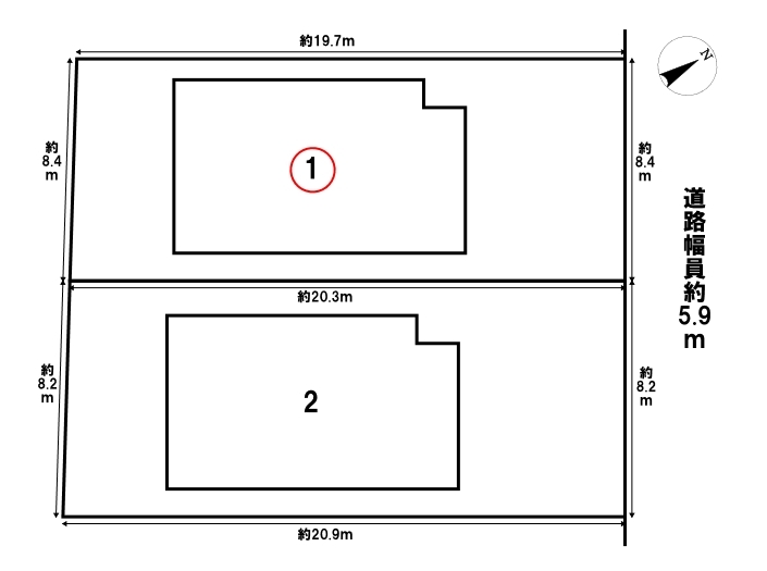
この物件は名古屋市桜通線「徳重」駅から北東方向へ徒歩約16分、愛知県名古屋市緑区徳重3丁目にある「ケイアイフィット名古屋市緑区徳重3丁目」全2棟の1号棟です。周辺は第1種低層住居専用地域に該当し、住環境が守られたエリア。一戸建てやマンションが立ち並ぶ街並みです。アピタ 緑店まで約620m、V・drug 徳重店まで約930m、徳重ながさわクリニックまで約1030m(車で約3分)など、各種施設が徒歩約10分圏内に揃っています。徳重小学校まで徒歩約11分、扇台中学校まで徒歩約15分で子育てにも安心な環境です。敷地は約168.96㎡(約51.11坪)、北東側幅員約5.9mの道路に約8.41m接道。建物は木造2階建て・延床約106.2㎡の5LDKで、南西向きバルコニー8.08㎡付き。駐車スペースは2台分確保可能で並列駐車も可能です。2026年1月完成予定の建築中物件で、フラット35Sにも対応しています。周辺には徳重幼稚園 徒歩13分、徳重清涼保育園 徒歩12分、梨の木公園 徒歩9分、セブンイレブン名古屋徳重3丁目店 徒歩4分、徳重郵便局 徒歩12分と利便性の高い住環境です。

物件概要

所在地
名古屋市緑区徳重3丁目
交通
名古屋市営地下鉄桜通線徳重駅徒歩16分
名古屋市営地下鉄桜通線神沢駅徒歩31分
学校区
名古屋市立徳重小学校 徳重小学校の不動産の購入→
名古屋市立扇台中学校 扇台中学校の不動産の購入→
間取り
5LDK
価格
5,499万円
構造/階数
木造/2階
築年月
2026年1月
開発面積
-
土地面積
168.96m²
建物面積
106.2m²
接道
北東側5.9m公道に8.41m接道
用途地域
1種低層
都市計画
市街化区域
建ぺい率
40%
容積率
80%
地目
宅地
総戸数
2戸
駐車場
有 普通車:3台 
現況
完工済
引き渡し可能時期
設備
 
建築確認番号
第KS125-0420-56792号
開発許可番号
-
取引態様
媒介
取引条件の有効期限
2026年4月19日
  • ※ 図面と現況が異なる場合は、現況を優先とします。
  • ※ 掲載物件は成約済み・売却中止となる場合があります。
  • ※ 成約の際は仲介手数料とこれにかかる消費税が必要です。(当社が売主の物件除く)
ローンシミュレーションを見る

ローンシミュレーション

この物件でローンシミュレーションをするこの物件を購入した場合の、月々の支払い価格の一例です。
返済期間
金利
ボーナス返済の割合
借入金額
万円
毎月の返済額
ボーナス月の返済額
  • ●実際の返済額とは諸条件によって異なります。目安としてご利用ください。
  • ●金利は返済期間を通して変わらないものとし、元利均等方式(元金と利息を合計した、毎月の返済額が同じになる)で計算しました。
  • ●ボーナス返済については、借入日とボーナス月の間隔によって、計算の結果が少し異なります。
周辺施設を見る

よくある質問

  • 「ケイアイフィット名古屋市緑区徳重3丁目 全2棟 1号棟 新築一戸建て」の購入に必要な頭金はどのくらいですか?

    物件価格の1〜2割程度が頭金の相場です。ファミリアホームサービスは、ファイナンシャルプランナー資格を持つスタッフが多数在籍しています。各銀行の審査条件やフラット35の金利情報などにも詳しいので、マイホーム購入に向けて、お金に関するご心配にも、誠心誠意対応いたします。お気軽にお問い合わせください。→お問い合わせはこちら

  • 資料はもらえますか

    はい、お渡しいたします!メールかお電話にて資料をご請求ください。ファミリアホームサービスは名古屋近郊に各拠点があり、地域密着が強みです。間取りや物件概要はもちろん、生活施設や教育施設など、周辺環境などの詳細もお伝えできる資料をお渡しできます。→お問い合わせはこちら

  • 見学することはできますか。

    メールかお電話にてご予約いただければ、待ち時間なくご案内させていただきます。物件見学はここに住んだら・・・のイメージが大切です。見学の際には、物件の特徴や周辺環境についてわかりやすく詳しくお伝えいたします。2〜3件見学される方が多いですが、もちろんもっと多くのご見学でも対応させていただきますのでお気軽にどうぞ!→来店予約はこちら

  • 「ケイアイフィット名古屋市緑区徳重3丁目 全2棟 1号棟 新築一戸建て」購入の際、不動産取得税の軽減措置は受けられますか?

    不動産取得税の軽減措置を受けるには、様々な諸条件があります。ですので、メールかお電話にて一度ご相談ください。ファミリアホームサービスは、グループ会社に税理士法人もあり、税金に関しても高い専門知識を持った経験豊富なスタッフが在籍しています。お気軽にお問い合わせください。→お問い合わせはこちら

←名古屋市緑区新築一戸建ての一覧を見る [ケイアイフィット名古屋市緑区徳重3丁目 全2棟 1号棟 新築一戸建て]のお問い合わせはお気軽にどうぞ。私たちがお待ちしております。
ハウスドゥ  みどり市民病院前のスタッフ

ハウスドゥ みどり市民病院前

  • 住所:名古屋市緑区潮見が丘二丁目290番地1
  • TEL:0120-05-8705
  • FAX:052-875-8706
  • 定休日:水曜日(祝日の場合は営業)、年末年始
  • 営業時間:10:00~18:00
【ケイアイフィット名古屋市緑区徳重3丁目 全2棟 1号棟 新築一戸建て】は名古屋市緑区の新築一戸建て、5,499万円。お問い合わせはファミリアホームサービスまで。 【ケイアイフィット名古屋市緑区徳重3丁目 全2棟 1号棟 新築一戸建て】は名古屋市緑区の新築一戸建て、5,499万円。お問い合わせはファミリアホームサービスまで。