3,090万円
新築一戸建て 価格変更

グラファーレ北名古屋市中之郷2期 全4棟 2号棟 新築一戸建て

[最寄り駅] 名鉄犬山線「西春」駅/JR東海道本線「稲沢」駅
[所在地] 北名古屋市中之郷八反
3,090万円
オープンハウス★現地案内会★ハウスドゥ 北区城北 時間/10:00〜18:00 来場予約

【南向き整形地の新築3LDK】●敷地面積約128㎡●延床100㎡超のゆとりある間取り●駐車2台可能●栗島小学校/天神中学校●
お問い合わせ番号:4418322

築年月
2025年12月
建物面積
100.19m²
土地面積
128.38m²
DB間取り図
築年月
2025年12月
建物面積
100.19m²
土地面積
128.38m²
DB間取り図

周辺地図

→google map
お問い合わせはこちら

[グラファーレ北名古屋市中之郷2期 全4棟 2号棟 新築一戸建て]のおすすめポイント

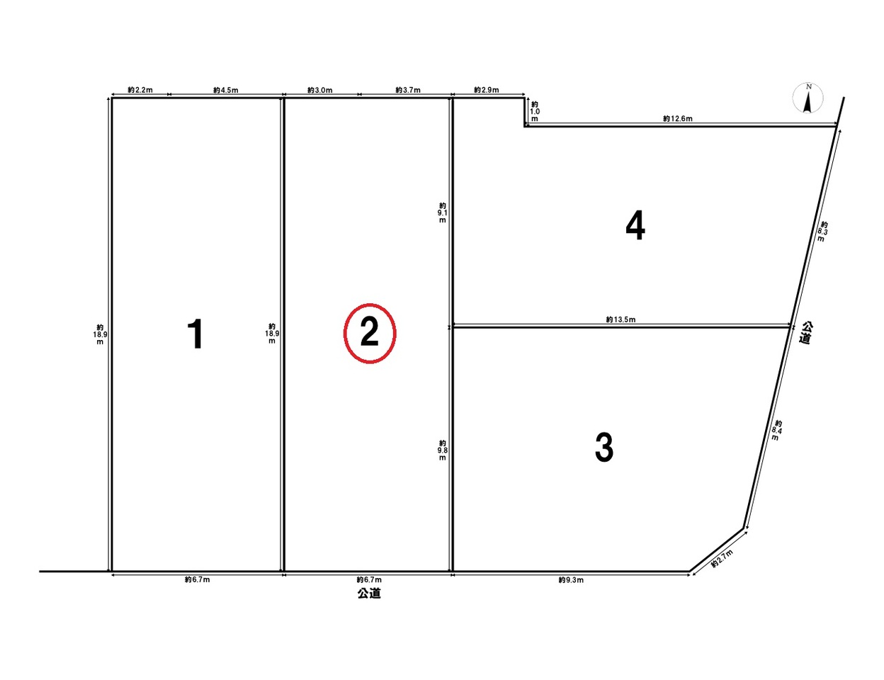
愛知県北名古屋市中之郷八反に誕生する「グラファーレ北名古屋市中之郷2期」全4棟のうち、2号棟のご紹介です。名鉄犬山線「西春」駅まで徒歩約32分、JR東海道本線「稲沢」駅まで徒歩約43分。周辺にはバス停もあり、通勤や通学に利用しやすい立地です。敷地面積は約128.38㎡(約38.83坪)、南側約8.4m幅の公道に接道した整形地で、陽当たり・通風に恵まれた住環境が魅力です。建物は木造2階建て・延床約100.19㎡、3LDKの間取り。LDKは15帖以上を確保し、家族が自然に集まる広々とした空間を実現。システムキッチンやカウンターキッチン、浴室1坪以上、追焚機能付きオートバス、温水洗浄便座、浴室乾燥機など最新の住宅設備を備えています。さらにウォークインクローゼットや床下収納など収納力も充実。駐車スペースは普通車2台分を確保し、来客時にも安心です。教育環境も整っており、栗島小学校まで徒歩約7分(約540m)、天神中学校まで徒歩約21分(約1640m)。2025年12月完成予定の新築戸建てで、新生活を快適にスタートできる住まいです。

物件概要

所在地
北名古屋市中之郷八反
交通
名鉄犬山線西春駅徒歩32分
JR東海道本線稲沢駅徒歩43分
学校区
名古屋市立栗島小学校
名古屋市立天神中学校
間取り
3LDK
価格
3,090万円
構造/階数
木造/2階
築年月
2025年12月
開発面積
-
土地面積
128.38m²
建物面積
100.19m²
接道
南側8.3m公道に6.75m接道
用途地域
1種住居
都市計画
市街化区域
建ぺい率
60%
容積率
200%
地目
宅地
総戸数
4戸
駐車場
有 普通車:2台 
現況
完工済
引き渡し可能時期
期日指定
設備
 
建築確認番号
第HPA-25-08725-1号
開発許可番号
-
取引態様
媒介
取引条件の有効期限
2025年12月28日
  • ※ 図面と現況が異なる場合は、現況を優先とします。
  • ※ 掲載物件は成約済み・売却中止となる場合があります。
  • ※ 成約の際は仲介手数料とこれにかかる消費税が必要です。(当社が売主の物件除く)
ローンシミュレーションを見る

ローンシミュレーション

この物件でローンシミュレーションをするこの物件を購入した場合の、月々の支払い価格の一例です。
返済期間
金利
ボーナス返済の割合
借入金額
万円
毎月の返済額
ボーナス月の返済額
  • ●実際の返済額とは諸条件によって異なります。目安としてご利用ください。
  • ●金利は返済期間を通して変わらないものとし、元利均等方式(元金と利息を合計した、毎月の返済額が同じになる)で計算しました。
  • ●ボーナス返済については、借入日とボーナス月の間隔によって、計算の結果が少し異なります。
周辺施設を見る

よくある質問

  • 「グラファーレ北名古屋市中之郷2期 全4棟 2号棟 新築一戸建て」の購入に必要な頭金はどのくらいですか?

    物件価格の1〜2割程度が頭金の相場です。ファミリアホームサービスは、ファイナンシャルプランナー資格を持つスタッフが多数在籍しています。各銀行の審査条件やフラット35の金利情報などにも詳しいので、マイホーム購入に向けて、お金に関するご心配にも、誠心誠意対応いたします。お気軽にお問い合わせください。→お問い合わせはこちら

  • 資料はもらえますか

    はい、お渡しいたします!メールかお電話にて資料をご請求ください。ファミリアホームサービスは名古屋近郊に各拠点があり、地域密着が強みです。間取りや物件概要はもちろん、生活施設や教育施設など、周辺環境などの詳細もお伝えできる資料をお渡しできます。→お問い合わせはこちら

  • 見学することはできますか。

    メールかお電話にてご予約いただければ、待ち時間なくご案内させていただきます。物件見学はここに住んだら・・・のイメージが大切です。見学の際には、物件の特徴や周辺環境についてわかりやすく詳しくお伝えいたします。2〜3件見学される方が多いですが、もちろんもっと多くのご見学でも対応させていただきますのでお気軽にどうぞ!→来店予約はこちら

  • 「グラファーレ北名古屋市中之郷2期 全4棟 2号棟 新築一戸建て」購入の際、不動産取得税の軽減措置は受けられますか?

    不動産取得税の軽減措置を受けるには、様々な諸条件があります。ですので、メールかお電話にて一度ご相談ください。ファミリアホームサービスは、グループ会社に税理士法人もあり、税金に関しても高い専門知識を持った経験豊富なスタッフが在籍しています。お気軽にお問い合わせください。→お問い合わせはこちら

←北名古屋市新築一戸建ての一覧を見る [グラファーレ北名古屋市中之郷2期 全4棟 2号棟 新築一戸建て]のお問い合わせはお気軽にどうぞ。私たちがお待ちしております。
ハウスドゥ  北区城北のスタッフ

ハウスドゥ 北区城北

  • 住所:愛知県名古屋市北区中切町四丁目84-1
  • TEL:0120-57-8088
  • FAX:052-908-8089
  • 定休日:水曜日(祝日の場合は営業)、年末年始
  • 営業時間:10:00~18:00
【グラファーレ北名古屋市中之郷2期 全4棟 2号棟 新築一戸建て】は北名古屋市の新築一戸建て、3,090万円。お問い合わせはファミリアホームサービスまで。 【グラファーレ北名古屋市中之郷2期 全4棟 2号棟 新築一戸建て】は北名古屋市の新築一戸建て、3,090万円。お問い合わせはファミリアホームサービスまで。