2,690万円
土地 NEW

名古屋市中川区打出1丁目 建築条件なし土地 1号地

[最寄り駅] 名古屋市営地下鉄東山線「高畑」駅/近鉄名古屋線「伏屋」駅
[所在地] 名古屋市中川区打出1丁目 (名古屋市中川区の不動産の購入と売却→)
オープンハウス★現地案内会★ハウスドゥ 中川区八熊通野田 時間/10:00〜18:00 来場予約

【解体後更地渡しで土地にかかる費用を抑えられます!】●建築条件なしでお好きなハウスメーカーで建築可能●病院や公園、保育園まで徒歩5分圏内●都市ガスなどのライフライン完備●最寄りバス停まで徒歩約2分●荒子小学校/一柳中学校●
お問い合わせ番号:4057664

築年月
-
建物面積
-
土地面積
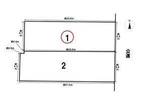
141.72m²
DB間取り図
築年月
-
建物面積
-
土地面積
141.72m²
DB間取り図

周辺地図

→google map
お問い合わせはこちら

[名古屋市中川区打出1丁目 建築条件なし土地 1号地]のおすすめポイント

用途地域は近隣商業地域。近隣の住民が日用品の買い物をする店舗等の業務の利便の増進を図る地域です。名古屋市東山線「高畑」駅まで徒歩約17分。住宅やお寺・公園もあり、静かで過ごしやすい住環境。土地面積は148.76㎡。建ぺい率80%・容積率200%。東側幅員約10.9mの道路に約7.20m接道しています。約44.99坪とややコンパクトなお土地です。プランによっては駐車場も確保できます。現在上物がありますが、解体して更地でのお引渡しになります。フィールアイアイプラザまで約870m、クスリのアオキ野田店まで約550m、西垣医院まで約110mなど、各種生活施設は徒歩約11分圏内に揃っている生活に便利な住環境です。国道1号線まで約1.6km(車で約5分)、富田料金所まで約3.7km(車で約9分)。荒子小学校まで徒歩約14分、一柳中学校まで徒歩約13分と子育て世帯にも嬉しい環境です。建築条件のない物件ですので、お好きなハウスメーカーで建築可能です。ハウスメーカー選びでお困りの際も中立的な立場でお手伝いさせていただきます。

物件概要

所在地
名古屋市中川区打出1丁目
交通
名古屋市営地下鉄東山線高畑駅徒歩14分
近鉄名古屋線伏屋駅徒歩24分
学校区
名古屋市立荒子小学校 荒子小学校の不動産の購入→
名古屋市立一柳中学校 一柳中学校の不動産の購入→
価格
2,690万円
開発面積
-
土地面積
141.72m²
接道
東側10.8m公道に6.8m接道
セットバック
2
私道負担
-
用途地域
近隣商業
都市計画
市街化区域
建ぺい率
80%
容積率
200%
地目
宅地
建築条件
建築条件なし
現況
古家付
引き渡し可能時期
相談
設備
 
取引態様
媒介
取引条件の有効期限
2026年2月15日
  • ※ 図面と現況が異なる場合は、現況を優先とします。
  • ※ 掲載物件は成約済み・売却中止となる場合があります。
  • ※ 成約の際は仲介手数料とこれにかかる消費税が必要です。(当社が売主の物件除く)
ローンシミュレーションを見る

ローンシミュレーション

この物件でローンシミュレーションをするこの物件を購入した場合の、月々の支払い価格の一例です。
返済期間
金利
ボーナス返済の割合
借入金額
万円
毎月の返済額
ボーナス月の返済額
  • ●実際の返済額とは諸条件によって異なります。目安としてご利用ください。
  • ●金利は返済期間を通して変わらないものとし、元利均等方式(元金と利息を合計した、毎月の返済額が同じになる)で計算しました。
  • ●ボーナス返済については、借入日とボーナス月の間隔によって、計算の結果が少し異なります。
周辺施設を見る

よくある質問

  • 「名古屋市中川区打出1丁目 建築条件なし土地 1号地」の購入に必要な頭金はどのくらいですか?

    物件価格の1〜2割程度が頭金の相場です。ファミリアホームサービスは、ファイナンシャルプランナー資格を持つスタッフが多数在籍しています。各銀行の審査条件やフラット35の金利情報などにも詳しいので、マイホーム購入に向けて、お金に関するご心配にも、誠心誠意対応いたします。お気軽にお問い合わせください。→お問い合わせはこちら

  • 資料はもらえますか

    はい、お渡しいたします!メールかお電話にて資料をご請求ください。ファミリアホームサービスは名古屋近郊に各拠点があり、地域密着が強みです。間取りや物件概要はもちろん、生活施設や教育施設など、周辺環境などの詳細もお伝えできる資料をお渡しできます。→お問い合わせはこちら

  • 見学することはできますか。

    メールかお電話にてご予約いただければ、待ち時間なくご案内させていただきます。物件見学はここに住んだら・・・のイメージが大切です。見学の際には、物件の特徴や周辺環境についてわかりやすく詳しくお伝えいたします。2〜3件見学される方が多いですが、もちろんもっと多くのご見学でも対応させていただきますのでお気軽にどうぞ!→来店予約はこちら

  • 「名古屋市中川区打出1丁目 建築条件なし土地 1号地」購入の際、不動産取得税の軽減措置は受けられますか?

    不動産取得税の軽減措置を受けるには、様々な諸条件があります。ですので、メールかお電話にて一度ご相談ください。ファミリアホームサービスは、グループ会社に税理士法人もあり、税金に関しても高い専門知識を持った経験豊富なスタッフが在籍しています。お気軽にお問い合わせください。→お問い合わせはこちら

←名古屋市中川区土地の一覧を見る [名古屋市中川区打出1丁目 建築条件なし土地 1号地]のお問い合わせはお気軽にどうぞ。私たちがお待ちしております。
ハウスドゥ  中川区八熊通野田のスタッフ

ハウスドゥ 中川区八熊通野田

  • 住所:愛知県名古屋市中川区打出1丁目1
  • TEL:0120-012-102
  • FAX:052-369-2110
  • 定休日:水曜日(祝日の場合は営業)、年末年始
  • 営業時間:10:00~18:00
【名古屋市中川区打出1丁目 建築条件なし土地 1号地】は名古屋市中川区の土地、2,690万円。お問い合わせはファミリアホームサービスまで。 【名古屋市中川区打出1丁目 建築条件なし土地 1号地】は名古屋市中川区の土地、2,690万円。お問い合わせはファミリアホームサービスまで。