1,980万円
中古マンション

グランコート東海通

[最寄り駅] 名古屋市営地下鉄名港線「東海通」駅/名古屋市営地下鉄名港線「港区役所」駅/名鉄常滑線「豊田本町」駅
[所在地] 名古屋市熱田区三番町
1,980万円
オープンハウス★現地案内会★ハウスドゥ 港区東海通 時間/10:00〜18:00 来場予約

●○価格変更○●【2024年4月フルリフォーム物件】●名港線「東海通」駅まで徒歩10分と交通至便●小学校まで徒歩3分●ペット飼育可能(規約あり)●周辺環境充実●駐車場空有●千年小学校/宮中学校●
お問い合わせ番号:3554055

築年月
2004年7月
建物面積
-
土地面積
-
DB間取り図
築年月
2004年7月
建物面積
-
土地面積
-
DB間取り図

周辺地図

→google map
お問い合わせはこちら

[グランコート東海通]のおすすめポイント

グランコート東海通は名古屋市熱田区三番町にある2004年(平成16年)07月築のRC造りのマンションです。周辺は近隣商業地域に該当し、近隣の住民が日用品の買い物をする店舗等の業務の利便の増進を図る地域です。住宅や店舗の他に小規模の工場も建てられます。名古屋市名港線「東海通」駅まで徒歩10分と通勤・通学にも便利な立地。千年小学校まで徒歩3分とお子さまの通学も安心です。学校行事の際も車を使わずに済みそうですね。宮中学校までは徒歩23分です。西友熱田三番町店まで徒歩8分 (約610m)、スギ薬局南一番店まで徒歩6分 (約450m)、協立総合病院まで徒歩10分 (約730m)など、各種生活施設は徒歩10分圏内に揃っている生活に便利な住環境。専有面積は75.86㎡。11階建の1階部分で間取りは3LDKです。管理費は7,980円/月、修繕費は9,940円/月。駐車場は5,000円~9,000円/月で使用可能です。ペット飼育可能(規約あり)物件ですので、大切なご家族と共に生活できるお家です。2024年4月フルリフォーム完了物件ですので、新しい設備で新生活をスタートできます。

物件概要

所在地
名古屋市熱田区三番町
交通
名古屋市営地下鉄名港線東海通駅徒歩10分 東海通駅の不動産の購入→
名古屋市営地下鉄名港線港区役所駅徒歩20分 港区役所駅の不動産の購入→
名鉄常滑線豊田本町駅徒歩23分
学校区
名古屋市立千年小学校 千年小学校の不動産の購入→
名古屋市立宮中学校 宮中学校の不動産の購入→
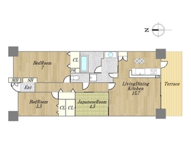
間取り
3LDK
価格
1,980万円
所在階/階数
1階/地上11階
構造
RC
築年月
2004年7月
土地面積
-
専有面積
75.86m²
バルコニー
15.68m²/向き
テラス面積
-
専用庭面積
-
管理費
7,980円
修繕積立金
19,880円
用途地域
近隣商業
総戸数
37戸
駐車場
-
現況
引き渡し可能時期
相談
設備
 
管理方式
-
管理会社
-
管理形態
管理人巡回
開発許可番号
-
取引態様
媒介
取引条件の有効期限
2026年3月17日
  • ※ 図面と現況が異なる場合は、現況を優先とします。
  • ※ 掲載物件は成約済み・売却中止となる場合があります。
  • ※ 成約の際は仲介手数料とこれにかかる消費税が必要です。(当社が売主の物件除く)
ローンシミュレーションを見る

ローンシミュレーション

この物件でローンシミュレーションをするこの物件を購入した場合の、月々の支払い価格の一例です。
返済期間
金利
ボーナス返済の割合
借入金額
万円
毎月の返済額
ボーナス月の返済額
  • ●実際の返済額とは諸条件によって異なります。目安としてご利用ください。
  • ●金利は返済期間を通して変わらないものとし、元利均等方式(元金と利息を合計した、毎月の返済額が同じになる)で計算しました。
  • ●ボーナス返済については、借入日とボーナス月の間隔によって、計算の結果が少し異なります。
周辺施設を見る

よくある質問

  • 「グランコート東海通」の購入に必要な頭金はどのくらいですか?

    物件価格の1〜2割程度が頭金の相場です。ファミリアホームサービスは、ファイナンシャルプランナー資格を持つスタッフが多数在籍しています。各銀行の審査条件やフラット35の金利情報などにも詳しいので、マイホーム購入に向けて、お金に関するご心配にも、誠心誠意対応いたします。お気軽にお問い合わせください。→お問い合わせはこちら

  • 資料はもらえますか

    はい、お渡しいたします!メールかお電話にて資料をご請求ください。ファミリアホームサービスは名古屋近郊に各拠点があり、地域密着が強みです。間取りや物件概要はもちろん、生活施設や教育施設など、周辺環境などの詳細もお伝えできる資料をお渡しできます。→お問い合わせはこちら

  • 見学することはできますか。

    メールかお電話にてご予約いただければ、待ち時間なくご案内させていただきます。物件見学はここに住んだら・・・のイメージが大切です。見学の際には、物件の特徴や周辺環境についてわかりやすく詳しくお伝えいたします。2〜3件見学される方が多いですが、もちろんもっと多くのご見学でも対応させていただきますのでお気軽にどうぞ!→来店予約はこちら

  • 「グランコート東海通」購入の際、不動産取得税の軽減措置は受けられますか?

    不動産取得税の軽減措置を受けるには、様々な諸条件があります。ですので、メールかお電話にて一度ご相談ください。ファミリアホームサービスは、グループ会社に税理士法人もあり、税金に関しても高い専門知識を持った経験豊富なスタッフが在籍しています。お気軽にお問い合わせください。→お問い合わせはこちら

←名古屋市熱田区中古マンションの一覧を見る [グランコート東海通]のお問い合わせはお気軽にどうぞ。私たちがお待ちしております。
ハウスドゥ  港区東海通のスタッフ

ハウスドゥ 港区東海通

  • 住所:名古屋市港区七番町三丁目13番地2 コスモハイム七番町 1-N号室
  • TEL:0120-016-131
  • FAX:052-355-6135
  • 定休日:水曜日(祝日の場合は営業)、年末年始
  • 営業時間:10:00~18:00
【グランコート東海通】は名古屋市熱田区の中古マンション、1,980万円。お問い合わせはファミリアホームサービスまで。 【グランコート東海通】は名古屋市熱田区の中古マンション、1,980万円。お問い合わせはファミリアホームサービスまで。